- Projekty domów
- Popularne
- Wielkość
- Kondygnacje
- Garaż
- Dach
- Działka
- Rodzaj zabudowy
- Inne kategorie projektów
- Projekty domów dla developera
- Projekty domów z pompą ciepła
- Projekty domów z rekuperacją
- Projekty domów z ogrzewaniem podłogowym
- Projekty domów z wyspą kuchenną
- Projekty domów z antresolą
- Projekty domów z wnętrzami
- Projekty domów z poddaszem do adaptacji
- Nietypowe projekty domów
- Projekty domów z płytą fundamentową
- Projekty premium
- Panoramy
- Realizacje
- Centrum informacji
- Dla dewelopera
- Kontakt





















Komentarze
Budowa
Dodano : 13/9/2017
Czy jest możliwość wykonania tarasu na całej powierzchni nad garażem?
Administrator
Dodano : 13/9/2017
Można, ale to drogie rozwiązanie. Z doświadczenia wiemy, że w domach jednorodzinnych rzadko korzysta się z tarasów na piętrze czy poddaszu, chyba że działka jest na tyle mała że dodatkowa przestrzeń jest funkcjonalnie uzasadniona.
grzegorz
Dodano : 02/9/2017
Bardzo ciekawie zaprojektowany wjazd do garażu. W jaki sposób utrzymują się płyty przed samym wjazdem do garażu? Czy jest tam płyta żelbetowa? Czy też luźni ułożone płyty na podbudowie z kamienia?
Administrator
Dodano : 02/9/2017
W naszym klimacie sprawdzają się jedynie rozwiązania na podbudowie. W tej sytuacji wystarczy wykonać boczne fundamentowe ścianki oporowe dla podbudowy.
Maciej
Dodano : 31/8/2017
Witam, Czy istnieje możliwość dostosowania tego projektu do działki z wejściem od południa? Wiem, że jest projekt budynku "Prosty 1", jednakże ten jest wg mnie atrakcyjniejszy oraz jego powierzchnia idealnie dopasowana do moich potrzeb. Ewentualnie czy istnieje możliwość prostej modyfikacji budynku "prosty 1" powodującej jego zmniejszenie do tej wielkości?
Administrator
Dodano : 31/8/2017
To zależy czy kierunek południowy jest prostopadły do granicy frontowej czy ma jakieś odchylenie. Jeśli nie jest prostopadły można rozważyć przeniesienie dużej witryny okiennej oraz tarasu na ścianę szczytową i tym samym "złapanie" południowego słońca. Dom zawsze można zmniejszyć, ale odwiedzaliśmy już projekty Proste i z pewnością możemy stwierdzić, że ich wielkość jest optymalna tzn. , że dla zachowania funkcjonalności oraz ergonomii nie powinny być pomniejszane.
Sebastian
Dodano : 15/8/2017
Dzień dobry, Czy istniały by możliwość w tym projekcie wprowadzenia okna w salonie boczna część budynko tak jak jest to w projekcie przytulny, oraz powiększenie łazienki na dole oraz zwiększenie przestrzeni w kuchni kosztem szafy w wiatrołapie ?
Administrator
Dodano : 15/8/2017
Oczywiście, wszystkie wymienione zmiany można bez problemu wykonać na etapie adaptacji projektu do warunków miejscowych.
Amelia
Dodano : 17/7/2017
Witam Bardzo przypadł mi Państwa projekt do gustu, potrzebuje jednakże sypialni na dole. Myślałam o wydłużeniu do końca bryły gabinetu i powiększeniu łazienki kosztem kotłowni. Czy istnieje możliwość przeniesienia w tej sytuacji kotłowni na koniec garażu ? Chciałabym również zrobić niewielką pustkę nad salonem kosztem pokoju 14m znajdującym się powyżej, tak jak to Państwo projektowali w domach Nowoczesny lub z Widokiem, a z pokoju na górze zrobić antresole. Czy jest to w tym projekcie do wykonania, oraz czy taka zmiana podnniosłaby znacząco koszty realizacji projektu ? Pozdrawiam Amelia
Administrator
Dodano : 17/7/2017
Wszystkie proponowane przez Panią zmiany są możliwe do wprowadzenia. Jeżeli planują Państwo piec gazowy to kotłownia nawet po zmniejszeniu może pozostać w obecnym miejscu lub może zostać przeniesiona za garaż. Wprowadzenie antresoli jest jak najbardziej możliwe i raczej nieznacznie zredukuje koszty niż je podwyższy.
Beata
Dodano : 01/6/2017
A mnie ciekawią schody wewnętrzne - nietypowa konstrukcja, czy boki to blacha czy jakiś inny materiał? Kto jest wykonawcą?
Administrator
Dodano : 01/6/2017
Konstrukcja biegu jest stalowa, tego typu rozwiązania wykonują firmy tworzące schody na indywidualne zamówienie, których obecnie w całym kraju jest bardzo dużo, wystarczy uruchomić przeglądarkę internetową:)
Grzegorz
Dodano : 16/5/2017
Czy likwidacja podcienia przed garażem w celu optycznego skrócenia elewacji frontowej i przesunięcie szarego słupa na krawędź części mieszkalnej korzystnie wpłynie na wygląd budynku? takie rozwiązanie jest w atrakcyjnym 2 a w tym projekcie z jakiegoś powodu Państwo to przeprojektowali.
Administrator
Dodano : 16/5/2017
Taka zmiana jest możliwa i rekomendujemy ją inwestorom, którzy chcą poszerzyć garaż. Prezentowane w projekcie rozwiązanie miało na celu nadanie indywidualnego charakteru tej wersji. Słup w narożniku oraz cofnięty garaż to rozwiązanie bardzo typowe, a nam zależało na jednoznacznej wizualnej identyfikacji projektu.
Michał
Dodano : 28/4/2017
Czy mogę prosić o wskazanie alternatywy do płytki klinkierowej na wykończenie elewacji ??
Administrator
Dodano : 28/4/2017
Ponieważ jesteśmy zwolennikami naturalnych materiałów możemy zaproponować drewno, ale możliwość jego montażu będzie zależna od tego czy wykonał już Pan ocieplenie na elewacji. Drewno elewacyjne wymaga pustki wentylacyjnej, a więc grubość termoizolacji będzie w tych miejscach mniejsza. Ostatecznie można podkreślić podziały elewacyjne innym tynkiem, chociaż nie lubimy takiego rozwiązania. Polecamy raczej zastosować jeden uniwersalny kolor- biały, a konieczne podziały elewacji wykonać przy pomocy listwy boniowej PCV.
Ania
Dodano : 05/12/2016
Witam, chciałam zapytać jaki kamień został użyty do wykonania elewacji zewnetrznej ?
Administrator
Dodano : 05/12/2016
To nie kamień tylko płytka klinkierowa ręcznie formowana, zapraszamy na stronę firmy KMK Klinkier.
Grzegorz
Dodano : 08/11/2016
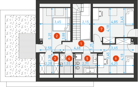
Poniżej kilka moich przemyśleń, proszę o ocenę: 1/ chciałbym zlikwidować garaż a na działce obok domu wybudować w późniejszym czasie garaż 2-stanowiskowy z rodziny Ekonomicznych 2/ czy jest możliwość skrócenia domu o około 1m (w celu redukcji kosztów) od strony południowo-wschodniej kosztem m2 salonu i dwóch pokojów na poddaszu? 3/ czy znany jest szacunkowy koszt schodów systemowych? Przypuszczam, że dostawca jest Państwa Partnerem. Chciałbym poznać poziom cenowy do własnej kalkulacji kosztów. 4/ Likwidacja pralni (przeniesienie pralki do pomieszczenia technicznego) i utworzenie w jej miejscu łazienki dostępnej tylko z pokoju dla rodziców - wejście przez garderobę.
Administrator
Dodano : 08/11/2016
1. Garaż można oczywiście zlikwidować, ale nie jesteśmy przekonani czy projekt garażu dedykowany rodzinie Ekonomicznych będzie pasował do tego domu. Na rynku projektów gotowych jest bardzo dużo garaży, które mogą być bardziej odpowiednie do tego projektu. 2. Technicznie jest to możliwe do zrobienia, ale odradzamy. Zarówno salon jak i umieszczone powyżej sypialnie są optymalne pod względem wygody użytkowania. Zwężenie budynku o 1m na pewno wpłynie negatywnie na ich funkcjonalność. 3. Koszt schodów będzie uzależniony od rodzaju konstrukcji oraz jej wykończenia i kształtuje się w przedziale od 15 tyś. do nawet 50 tyś. 4. Nie ma problemu.
Marcin
Dodano : 04/10/2016
Od osób budujących dom wg. Państwa projektu, wiem, że w projekcie przyjeliście Państwo wykończenia tytan-cynkiem, który jest parokrotnie droższy od dobrej jakości blachy. Czy możecie Państwo zaproponować konkretne kolory dostępnych blach, pasująca do budynku z zachowaniem koloru dachu, elewacji itp.
Administrator
Dodano : 04/10/2016
Proponujmey np. blachę firmy Plannja - Emka Aluminium w technologii na rąbek w kolorze Zink Optic oraz orynnowanie Plannja Green Coat Pro w kolorze cynkowoszarym. Można również wycenić blachę firmy Prefa w kolorze srebrny metalik i takim samym orynnowaniem. Ogólnie preferujemy kolory jasnoszare jako najbardziej uniwersalne.
Monika
Dodano : 22/8/2016
Witam, 1. Czy mogą Państwo udostępnić wizualizacje budynku (od ogrodu), patrząc z lewej strony tylnej elewacji, oraz wizualizację budynku z oknem tarasowym pomniejszonym o "nadbudowę". 2. Czy projekt zawiera? - z wymiarowaną konstrukcję dachu (zestawienie więźby) - zestawienie materiałowe ścian/stropów ewentualnie powierzchnie ścian/stropu Z góry dziękuję
Administrator
Dodano : 22/8/2016
1. W dniu jutrzejszym zamieścimy na stronie obrót budynku 360 stopni. 2. Projekt standardowo zawiera projekt wykonawczy więźby dachowej oraz zestawienie drewna, natomiast zestawienie pozostałych materiałów jest dostępne w kosztorysie.
Natalia
Dodano : 13/6/2016
Witam, W przypadku podpiwniczania tego projektu, w jaki sposób i w jakim miejscu proponowaliby Państwo schody do piwnicy?
Administrator
Dodano : 13/6/2016
To już zależy od tego jakie będzie przeznaczenie funkcjonalne piwnicy. Jeśli planują Państwo pomieszczenia typu rekreacyjnego - barek, kino domowe itp. to bieg schodowy można usytuować pod biegiem na poddasze, za drzwiami do pokoju. Piwnica jest zazwyczaj pomieszczeniem niższym, a same stopnie mogą być nieco wyższe, dzięki temu schody zmieszczą się w tym miejscu. Jeśli natomiast planują Państwo w piwnicy pomieszczenia techniczne to sugerujemy umieszczenia schodów w garażu, który ma prawie 4 m szerokości lub rozważyć lokalizację schodów na zewnątrz przy bocznej ścianie garażowej.
Adam
Dodano : 14/5/2016
Witam, Czy istnieje możliwość rezygnacji ze spiżarni i/lub garderoby na parterze, tak żeby powiększyć powierzchnię kuchni i dodać wyspę oraz większe przeszklenia w samej kuchni od strony frontowej domu (jak w "Atrakcyjnym 1")? Czy wówczas nie pojawi się przypadkiem konieczność dodania dodatkowego "słupa" w salonie albo w kuchni?
Administrator
Dodano : 14/5/2016
Jak najbardziej można powiększyć kuchnie kosztem garderoby i spiżarni, aranżując ją na wzór wersji 1. Ściany wyznaczające te pomieszczenia są działowe i można je usunąć. Po takiej modyfikacji nie będzie słupa w salonie lub kuchni, ale ściana pomiędzy wiatrołapem a kuchnią musi pozostać konstrukcyjna, bo właśnie na niej opiera się podciąg biegnący przez salon, na którym opiera się strop.
Rafał
Dodano : 11/1/2016
Witam wszystkich posiadaczy wybudowanych już domów Atrakcyjny 3. Chciałbym jeśli to możliwe nawiązać kontakt mailowy z osobą która ma ten temat już za sobą. Bardzo proszę o kontakt. Wiedza, którą posiadacie jest nieoceniona dla tych którzy mają ten temat przed sobą. Z góry dziękuję.
Ewelina
Dodano : 17/11/2015
Witam, mam pytanie natury estetycznej, związanej z wyglądem budynku. Zastanawiam się nad tym, aby białą elewację na zewnątrz zastąpić jasnymi płytkami klinkierowymi. Zależałoby mi na pozostawianiu kontrastu z tymi ciemniejszymi. Co Państwo sądzą na ten temat? Czy to nie zaburzy wyglądu budynku i Państwa koncepcji? Pozdrawiam.
Administrator
Dodano : 17/11/2015
Z estetycznego punktu widzenia zastąpienie tynku jasną płytką klinkierową na pewno będzie korzystne, ale niestety podniesie znacząco koszty realizacji. Ponadto klejenie płytki klinkierowej wymaga wprawy i dużej staranności, łatwiej jest wymurować warstwę elewacyjną z pełnej cegły niż przykleić płytki. Niewłaściwe wykonanie tego elementu będzie skutkowało odpadaniem płytek od elewacji i może w konsekwencji doprowadzić do konieczności usunięcia całej warstwy. Na małej powierzchni ewentualne usunięcie usterek będzie znacznie łatwiejsze i tańsze. Reasumując: jeśli wykonawca nie gwarantuje solidnego wykonania to lepiej nie ryzykować.
Len
Dodano : 28/10/2015
Witam, czy jest mozliwosc zmniejszenia powierzchni domu poprzez zlikwidowanie gabinetu? Da sie jakos sensownie zmienic uklad pomieszczen?
Administrator
Dodano : 28/10/2015
Nie wiemy czym jest podyktowania chęć zmniejszenia powierzchni domu, ale domyślamy się, że chodzi o ograniczenie wydatków. Można oczywiście zlikwidować pokój na parterze z jednoczesnym wysunięciem garażu do przodu, uzyskując w ten sposób podcień tarasowy, ale wydaje nam się, że o wiele lepszym rozwiązaniem mającym na celu redukcję kosztów jest likwidacja garażu. Po pierwsze jest to bardzo prosta zmiana adaptacyjna, po drugie należy pamiętać, że w kosztorysie 1 m2 garażu kosztuje tyle samo co 1 m2 powierzchni mieszkalnej. Likwidując garaż oszczędza Pan koszty 25 m2 zamiast 11.
Igor
Dodano : 13/8/2015
http://www.k999on.mojabudowa.pl/
DOMY Z WIZJA
Dodano : 29/7/2015
Dla wszystkich zainteresowanych publikujemy link do filmu prezentującego montaż pompy ciepła oraz ogrzewania podłogowego w domu Atrakcyjny 3: https://www.youtube.com/watch?v=bPsmvSPKxKI
DOMY Z WIZJA
Dodano : 29/7/2015
Oba usytuowania będą poprawne, dlatego wybór jednego z nich może zależeć np.od ekspozycji widokowych z okien na działce inwestora. Ze względu na nasłonecznienie kuchni w godzinach porannych proponujemy układ domu taki jak na stronie.
DOMY Z WIZJA
Dodano : 29/7/2015
1. To jest możliwe, ale nie widzimy racjonalnego argumentu uzasadniającego mieszanie technologii. 2. Tak. 3. Likwidacja garażu jest zmianą bardzo prostą i można ją wykonać bez większego problemu na etapie adaptacji projektu do warunków miejscowych.
Krzysztof
Dodano : 08/11/2014
Witam, Wersja 3/3a jest więkasza od wersji 2 a mimo wszystko nie zawiera 'slupów' w salonie. Czy jest to błąd, czy może w tej wersji zastosowano inną technlogię wykonania sropu?
Administrator
Dodano : 08/11/2014
To nie błąd, w tej wersji brak słupów został skompensowany wyższym podciągiem rozdzielającym salon od komunikacji.
Tomek
Dodano : 20/10/2014
Witam Państwa, Jaka grubość izolacji zewnętrznej została uwzględniona w projekcie; fundament, ściana, poddasze?. Drugie pytanie; jaki rodzaj fundamentu jest w projekcie i czy ewentualnie jest możliwość posadowienia domku na płycie fundamentowej. Pozdrawiam
Administrator
Dodano : 20/10/2014
Ściana fundamentowa: 15 cm, ściana: 18 cm, posadzka gruntowa: 15 cm, dach: 32 cm. W projekcie są przewidziane tradycyjne ławy i ściany fundamentowe ale nic nie stoi na przeszkodzie, aby na etapie adaptacji przeprojektować je na płytę.
Dominika
Dodano : 16/10/2014
Projekt wspaniały. Mam tylko jedną uwagę,czy istnieje możliwość zmiany położenia dolnej łazienki tak, aby była choćby z malutkim oknem?
Administrator
Dodano : 16/10/2014
Tak, ale pod warunkiem przesunięcia łazienki i wykonania wyjścia z kotłowni bezpośrednio do holu, a nie przez wiatrołap.
ROBERT
Dodano : 11/9/2014
Witam, Czy jest możliwe wybudowanie togo domu w technologi, która spełni wymagania jakie są stawiane budynkom energooszczędnym. Mam na myśli (zapotrzebowanie na energię użytkową poniżej 40 kWh/(m2*rok)) Jakie zmiany w projekcie były by konieczne.
Administrator
Dodano : 11/9/2014
Przed wprowadzeniem programu dopłat NF40 wspólnie z firmą BuildDesk sprawdziliśmy możliwości dostosowania naszych projektów do jego warunków. Okazało się, że prawie wszystkie domy w naszej ofercie można dostosować do wymagań tego programu. Nalezy jedynie przeprowadzić audyt projektu przed dokonaniem adaptacji do warunków miejscowych, na podstawie którego projektant adaptujący będzie mógł nanieść wszystkie niezbędne zmiany. Nasza pracownia umożliwia kontakt z certyfikowanymi audytorami.
Weronika
Dodano : 30/8/2014
Zapraszam na bloga www.atrakcyjny3.mojabudowa.pl
karolina
Dodano : 28/8/2014
jeszcze jedno pytanko, co sie bardzie oplaca patrzac na koszty budowy tekiego domku powiekszyc garaz o te 2-3 metry i zrobic garaz dwustanowsikowy czy wogole zrezygnowac z garazy i osobno postawic na dzialce garaz dwustanowiskowy?
Administrator
Dodano : 28/8/2014
Możliwość usytuowania oddzielnego budynku garażowego lub gospodarczego na działce jest najczęściej uwarunkowana zapisami zawartymi w decyzji o warunkach zabudowy lub miejscowym planie zagospodarowania przestrzennego, a zatem w tej kwestii inwestor często nie ma swobodnego wyboru. Co do kosztów obu rozwiązań oddzielny budynek może się okazać tańszym rozwiązaniem.
karolina
Dodano : 28/8/2014
Witam, prosze mi powiedziec jaka jest szerokosc garazu i ile ewentulanie trzeba by dodac metrow po szerokosci aby ten garaz byl dwustanowiskowy?
Administrator
Dodano : 28/8/2014
Szerokość garażu wynosi 395 cm i jak na jedno stanowisko jest to dużo. Minimalna szerokość garażu dwustanowiskowego to 540 cm, ale jest to wymiar mało wygodny, za optymalny można uznać przedział 575 - 605 cm.
Julia
Dodano : 25/7/2014
Mam pytanie dotyczące kuchni. Czy w tym projekcie można zastosować rozwiązanie takie jak w projekcie Atrakcyjny 2?
Administrator
Dodano : 25/7/2014
Tak, chociaż w tej wersji widok frontowy budynku z narożnym oknem będzie wyglądał gorzej. Takie okno poszerzy optycznie już dosyć szeroką elewację.
Aleksandra
Dodano : 15/7/2014
Witam. Mam pytanie jakie zmiany należałoby poczynić aby zmienić ogrzewanie z gazowego na ogrzewanie paliwem stałym? Jesteśmy posiadaczami tego projektu. Pozdrawiam
Administrator
Dodano : 15/7/2014
Zastosowanie w tym projekcie jako źródła ogrzewania pieca na paliwo stałe nie wymaga żadnych zmian ponieważ pomieszczenie kotłowni jest wystarczająco duże.
TOMASZ
Dodano : 19/6/2014
Mam pytanie a propos wersji Atrakcyjny 3. Okap to istotna część dachu. Od jego wykonania zależy skuteczność ochrony krawędzi dachu i ścian zewnętrznych domu przed zawilgoceniem wodą opadową. W wersji Atrakcyjny 3A są już okapy, ale wersja Atrakcyjny 3 bardziej mi się podoba. Jakie są różnice w zastosowaniu okapu i bez okapu. Czy wersja Atrakcyjny 3 dostatecznie zabezpiecza ściany budynku pomimo braku okapów?
Administrator
Dodano : 19/6/2014
Prawidłowo wykonany detal zakończenia połaci dachu bez tradycyjnego okapu zabezpiecza równie dobrze jak wysunięty okap. Dach pozbawiony okapów nie jest wymysłem nowoczesnej stylistyki i funkcjonuje w architekturze europejskiej od bardzo dawna. Reasumując nie ma powodów dom obaw, negatywne obiegowe opinie na temat tego rozwiązania wynikają z tego, że ewentualne błędy wykonawcze są szybciej zauważalne niż w przypadku okapu tradycyjnego.
Kasia
Dodano : 15/5/2014
czy można by w tym projekcie powiększyć antresolę kosztem pokoju nr 7 ?
Administrator
Dodano : 15/5/2014
Tak, jeśli na poddaszu wystarczą Pani tylko dwie zamknięte sypialnie to można zlikwidować ścianę oddzielającą otwartą klatkę schodową od pokoju nr 7.
Rafał
Dodano : 07/5/2014
O ile mniej więcej zmniejszy się koszt budowy przy rezygnacji z garażu?
Administrator
Dodano : 07/5/2014
Nasze kosztorysy zakładają uśrednioną kwotę realizacji 1 m2 powierzchni użytkowej na poziomie ok.2400zł/brutto, a zatem rezygnując z garażu, który ma 25m2 można przyjąć oszczędność na poziomie ok.60 tyś.zł.
Darek
Dodano : 21/4/2014
Witam. Czy przy zakupie projektu wraz z projektem rekuperacji w projekcie budowlanym są kominy wentylacyjne? Bo w przypadku wentylacji mechanicznej wydaje mi się ,że nie trzeba ich wykonywać, wiadomo że zrezygnowanie z nich obniży koszt realizacji bo w projekcie są 4 kominy wentylacyjne.
Administrator
Dodano : 21/4/2014
Ponieważ w tym projekcie wentylacja mechaniczna jest rozwiązaniem dodatkowym, kominy pozostają w dokumentacji. Należy je wykreślić z projektu na etapie adaptacji do warunków miejscowych. Taka zmiana rzeczywiście redukuje koszty. Nie uwzględniamy kominów wentylacji grawitacyjnej tylko w projektach, w których rekuperacja stanowi podstawowy rodzaj wentylacji, np. w projektach "Parterowy 1", "Parterowy 2", "Rodzinny 1"
Łukasz
Dodano : 20/4/2014
Witam. Co sądzicie o z rezygnacji z pralni i garderoby na piętrze i zrobieniu tam dodatkowego pokoju- jakieś praktyczne sugestie?
Administrator
Dodano : 20/4/2014
Taką zmiana jest możliwa. Likwidując pralnię i garderobę oraz powielając układ sypialni po lewej stronie można uzyskać dodatkowy w pełni funkcjonalny pokój. Po wykonaniu takiej modyfikacji sugerujemy przeniesienie sypialni głównej do pokoju nad salonem.
Agnieszka
Dodano : 17/4/2014
Witam. Czy jest możliwość przeniesienia garażu tak jak w atrakcyjnym 1. Posiadam działkę od frontu o szerokości 21,25 m zaś dł. 28.55 m i w obecnej formie projekt nie zmieści mi się na działce.
Administrator
Dodano : 17/4/2014
Tak, na etapie adaptacji projektu do warunków miejscowych garaż można wysunąć przed budynek analogicznie jak w wersji "1".
Damian
Dodano : 02/4/2014
Witam, Jestem pod wrażeniem spójności stylistycznej Państwa projektów. Chciałbym spytać o wymiary pionowe budynku, gdyż często w odpowiedziach podkreślacie dbałość o właściwe proporcje bryły. W związku z tym jestem ciekaw, jaka jest wysokość pomieszczeń w stanie wykończonym (w miejscach bez lokalnych obniżeń wynikających z aranżacji wnętrz) oraz jaką wysokość konstrukcyjnej ścianki kolankowej przyjmujecie Państwo od poziomu wykończonej podłogi (czyli w miejscach usytuowania okien połaciowych) Sam obecnie mieszkam w kamienicy z okresu modernistycznego, gdzie wysokość pomieszczeń wynosi 280 cm. i przyznam, że w przyszłym domu dążyłbym do uzyskania podobnego gabarytu, ale jednocześnie zdaję sobie sprawę, że uwzględniając całkowitą grubość stropu 30+ cm i ściankę kolankową o rozsądnej wysokości, prawdopodobnie zbyt zwiększyłoby to szerokość pasa nadokiennego na elewacji. Czy moje obawy są słuszne? I dodatkowe pytanie z tym związane: jaka wysokość stopni schodów jest proponowana przez Państwa dla optymalnego kompromisu między ergonomią i przestrzenią zajmowaną przez bieg schodowy?
Administrator
Dodano : 02/4/2014
Wysokość pomieszczeń od wykończonej podłogi do otynkowanego stropu to 276 cm, wysokość odsuniętej ścianki kolankowej to 100cm, wysokość stopni w biegu to 17,8 cm. Proporcje są bardzo ważne dlatego nie polecamy powiększania tych wartości. Jak słusznie Pan zauważył istotna jest tutaj wysokość pasa nadokiennego dlatego ścianka kolankowa nie leży na zewnętrznym obrysie budynku tylko jest odsunięta wgłąb pomieszczenia na bazie lekkiej konstrukcji. Najczęściej inwestorzy pytają o możliwość podwyższenia ścianki kolankowej i najczęściej taka modyfikacja ma najbardziej destrukcyjny wpływ na wygląd domu. Wysokość 100 cm w tym projekcie może wydawać się nieduża, ale proszę pamiętać, że kąt nachylenia połaci wynosi 45 stopni więc poddasze jest w pełni funkcjonalne.
PAWEŁ I KASIA
Dodano : 02/4/2014
Czy zrobienie zadaszenia nad garażem bardzo zepsuję ogólny zamysł architektoniczny ?
Administrator
Dodano : 02/4/2014
Dach nad garażem na pewno pozbawi bryłę pewnej lekkości, ale nie jesteśmy temu przeciwni ponieważ rozumiemy, że mają Państwo na myśl wersję z okapami. W przypadku wersji bezokapowej tak zmiana wygląda gorzej. Wprowadzenie dachu wymaga likwidacji podcienia nad garażem w celu cofnięcia połaci frontowej i wyraźnego oddzielenia części garażowej od mieszkalnej. Trzeba pamiętać, że funkcjonalność powstałego ponad garażem pomieszczenia będzie ograniczona dostępem tylko z sypialni rodziców.
PAWEŁ I KASIA
Dodano : 02/4/2014
Kiedy mozemy sie spodziewać wersji z okapami atrakcyjny 3. Nie ukrywamy ze zależy nam na czasie bo chcemy rozpocząć budowe. Ale jeszcze chcemy zobaczyc wersje z okapami.
Administrator
Dodano : 02/4/2014
Projekt będzie dostępny pod koniec kwietnia. To potwierdzona informacja ponieważ trwają już prace nad tą wersją. Wizualizacje zamieścimy wcześniej - za 2-3 tygodnie.
Paweł i Kasia
Dodano : 25/3/2014
Witam. Chcieliśmy zapytać czy garaż nie będzie przemarzał w zimie ? Jaka jest zastosowana izolacja ?
Administrator
Dodano : 25/3/2014
Nie będzie, strop garażu jest izolowany termicznie polistyrenem ekstrudowanym gr.16 cm + grubość styropianowych klinów spadkowych. Warstwę hydroizolacyjną stanowi membrana EPDM. Woda jest odprowadzana podgrzewanym wpustem dachowym.
grzegorz
Dodano : 16/3/2014
Witam. Jak wyglada sprawa wersji z okapami tego domku?? Jestem bardzo zainteresowany projektem ale z okapami.
Administrator
Dodano : 16/3/2014
Ze względu na duże zainteresowanie inwestorów taka wersja wkrótce się pojawi, pracujemy nad tym.
Paweł i Kasia
Dodano : 16/3/2014
Witam serdecznie . 1. Czy jest możliwość powiększenia salonu kosztem spiżarni ? 2. Jak już wyczytałem jest do możliwość zrobienia garażu na 2 auta (jaki będzie wymiar?) i czy można na całej powierzchni nad garażem zrobić taraś i jak to się ma do warunków zimowych? 3. Jakie właściwości są przy wprowadzeniu okapu do projektu ? Czy są one potrzebne ? 4. Czy i i kiedy będzie pierwsza realizacja na stronie ??
Administrator
Dodano : 16/3/2014
1.Tak 2. Minimalna szerokość dla garażu dwustanowiskowego to 5,4 m, ale dla większego komfortu ten wymiar powinien być większy 5,75-6m. Zakładając taką szerokość zewnętrzny wymiar budynku powiększy się o 1,8-2,1m. W kwestii tarasu raczej odradzamy wykorzystanie całej powierzchni dachu bo będzie to zbyt kosztowne 3. Wprowadzenie okapów na pewno wymaga zmiany kata nachylenia dachu na 40 lub 42 stopnie, okapy pełnia funkcje osłonową i dekoracyjną 4. To ju zależy od determinacji inwestorów, mamy nadzieję że jesienią bieżącego roku będziemy mogli zaprezentować ten budynek.
Paweł
Dodano : 13/3/2014
Witam, posiadam wąską działkę o szer. 18 m, czy jest możliwość powiększenia powierzchni garażu na dwa stanowiska (zwiększenie kubatury) i przeniesienia bramy garażowej na krótszą ścianę budynku ?
Administrator
Dodano : 13/3/2014
Oczywiście z technicznego punktu widzenia jest to możliwe. Zakładamy, że działka jest dosyć długa dlatego korzystne byłoby również otwarcie widokowe w głąb działki polegające na przeniesieniu dużego przeszklenia na ścianę szczytową.
DOMY Z WIZJA
Dodano : 10/2/2014
W tej chwili nie, ponieważ przygotowanie wizualizacji na odpowiednim poziomie jakościowym jest bardzo czasochłonne. W związku z tym ograniczamy się zazwyczaj do pokazania jedynie tych fragmentów wnętrza, które są charakterystyczne i niepowtarzalne dla każdego projektu. Zazwyczaj pokoje na poddaszu są rozwiązane standardowo i w większości projektów wyglądają podobnie. Zamiast wizualizacji zamierzamy wiosną tego roku zaprezentować zdjęcia z pierwszych realizacji domu Atrakcyjny 1, którego pokoje na poddaszu są niemal identyczne jak w wersji "3".
Michał
Dodano : 18/1/2014
Witam, pytanie czy ten projekt posiada strych ?
Administrator
Dodano : 18/1/2014
Oczywiście, odsyłamy do obejrzenia rysunków szczegółowych. Strych ponad poddaszem w najwyższym miejscu ma ok.180 cm wysokości.
Adam
Dodano : 17/1/2014
Witam czy jest mozliwosc wygospodarowania miejsca na wyspę w kuchni? Projekt bardzo nam sie podoba ale zalezy nam na wyspie- moze byc kosztem spizarni.zastanawiamy sie tez nad zmianą duzego okna w kuchni na takie jakie jest w atrakcyjnym 2. Pozdrawiam
Administrator
Dodano : 17/1/2014
Wstawienie wyspy będzie wymagało likwidacji spiżarni i przeniesienia garderoby w okolice kotłowni. Można wprowadzić okno narożne w kuchni, ale jak wspominaliśmy poniżej takie rozwiązanie poszerza optycznie elewacje.
Kris.
Dodano : 04/1/2014
witam,czy projekty są przystosowane do aktualnych wymagań odnośnie wspólczynnika EP?
Administrator
Dodano : 04/1/2014
Tak, maksymalna wartość wskaźnika EP dla projektów domów dostępnych w naszej ofercie nie przekracza wartość 120 [kWh/(m2rok)], zgodnie z nowymi przepisami, obowiązującymi od 1 stycznia 2014 roku.
Grzegorz
Dodano : 02/1/2014
Witam, czy jest możliwość zrezygnowania z pokoju na parterze i stworzenia w to miejsce garażu na 2 stanowiska??? Pozdrawiam
Administrator
Dodano : 02/1/2014
Tak , to jest możliwe, ale wymaga istotnej korekty układu funkcjonalnego parteru oraz konstrukcji.
Mila
Dodano : 30/12/2013
Piękny projekt domu. Jest prawie idealny, a mianowicie zastanawiam się nad zmianami tj. okapy oraz rozkład kuchni. Chciałabym wygospodarować miejsce na stół niekoniecznie w części wypoczynkowej. Myślałam o zlikwidowaniu schowka z wejściem od wiatrołapu i spiżarki. Tym samym zrobić zabudowę kuchenną na ścianie graniczącej z salonem i pod oknem poziomym, które chciałabym przenieść na ścianę frontową. Dzieki temu zyskałabym miejsce na stół, gdzie w tym momencie widoczna jest na wizualizacji zabudowa kuchenna. Mam nadzieję, że dom nie straciłby na atrakcyjności. Proszę o Państwa opinie czy tego typu rozwiązanie jest dobrym pomysłem oraz informację czy planują Państwo zamieścić wersję projektu "Atrakcyjny 3" z okapami (czy to wiązałoby się ze zmianą kąta dachu?) Pozdrawiam.
Administrator
Dodano : 30/12/2013
Właściwie każdy inwestor ma pomysły na dostosowanie projektu do indywidualnych potrzeb i jeśli nie powoduje to rewolucji w układzie funkcjonalnym lub formie domu to nie widzimy przeszkód. Jeśli nie potrzebuje Pani pomieszczeń gospodarczych to uzyskaną przestrzeń łącznie z kuchnią można zaaranżować w inny sposób tak aby zmieścił się stół. Wprowadzenie tradycyjnych okapów wymaga zmiany kąta nachylenia połaci na 42 lub 40 stopnie. Na chwile obecną nie możemy potwierdzić, że wprowadzimy wersję z okapami do sprzedaży.
LIDIA
Dodano : 28/12/2013
Ten projekt jest idealny. nie zamierzam nic w nim zmieniać. Proszę o podpowiedź czy sufit nad kuchnią (widoczny na wizualizacji) jest elementem konstrukcji czy jest to podwieszony sufit z płyt kartonowo gipsowych, który może, ale nie musi zostać wykonany? I druga kwestia: Chciałabym aby kominek był zorientowany na część wypoczynkową. Jak można uzyskać ten efekt?
Administrator
Dodano : 28/12/2013
Sufit podwieszany widoczny na wizualizacji jest elementem aranżacji wnętrza i nie ma konieczności jego wykonywania. Kominek można przesunąć bardziej w stronę salonu oraz wykorzystać model z narożnym paleniskiem otwartym w jego stronę.
Magda
Dodano : 16/12/2013
Piękny projekt - prawie idealny. Dom ma bardzo funkcjonalny układ i piękną bryłę, ale obawiam się, że będzie odrobinę za mały (zwłaszcza jeżeli chodzi o salon). Czy możliwe jest wydłużenie i poszerzenie domu o 1m przy jednoczesnym zmniejszeniu kąta nachylenia dachu, tak aby nie zepsuć bryły, a uzyskać przestrzeń podobną do tej w projekcie Atrakcyjny 1?
Administrator
Dodano : 16/12/2013
Głębokość traktu tego domu jest identyczna jak w wersji"1" dlatego nie ma sensu jej powiększać. Można natomiast poszerzyć bryłę do wymiarów Atrakcyjnego 1. Na pewno odradzamy zmianę kąta nachylenia połaci lub podnoszenie ścianki kolankowej. Są to modyfikacje które będą miały zdecydowanie negatywny wpływ na wygląd zewnętrzny domu.
Krystian
Dodano : 10/12/2013
Witam, czy w tym projekcie można zastosować w kuchni rozwiązanie okien z Atrakcyjnego 2 (tj. okno narożne i zwykłe koło kominka)?
Administrator
Dodano : 10/12/2013
Tak, oczywiście, chociaż biorąc pod uwagę estetykę i proporcje zewnętrznej formy obecne rozwiązanie jest lepsze. Narożne okno poszerzy optycznie elewację frontową, która sprawia wrażenie szerszej niż w wersji "2" ze względu na obramowanie garażu zlicowane z bryłą budynku. Po wstawieniu okna narożnego w kuchni to wrażenie może się pogłębić.
Łukasz
Dodano : 24/11/2013
CZy istnieje możliwość zastąpienia ścian z bloczku silikatowego na poroterm ?
Administrator
Dodano : 24/11/2013
Tak, oba materiały mają podobne właściwości fizyczne, w tym najważniejszy dla konstrukcji parametr na ściskanie w przedziale 10-15 MPA.
aga
Dodano : 03/11/2013
czy istnieje możliwość innego usytuowania schodów? chodzi o inne rozwiązania, ewentualne możliwości. Projekt idealny, jrdyne co chciałabym zmienić to koniecznośc przejścia przez salon by dotrzeć do schodów.
Administrator
Dodano : 03/11/2013
Zmiana lokalizacji schodów narzuciłaby konieczność korekty całego układu funkcjonalnego czyli w praktyce zaprojektowanie nowego domu. Rozumiemy, że obecne rozwiązanie komunikacyjne nie każdemu może odpowiadać, ale schody umieszczone w tym miejscu stanowią integralną część ogólnej koncepcji tego domu.
Elżbieta
Dodano : 30/10/2013
Witam, Jaki to system rynnowy jest lub jaka to firma?Dziękuję i pozdrawiam :)
Administrator
Dodano : 30/10/2013
Rheinzink
Darek
Dodano : 22/10/2013
Witam, jeden z najfajniejszych projektów jaki oglądałem. Mam pytanie czy pokrycie dachu blachą płaską z rąbkiem stojącym zepsuje cały projekt? pytam ponieważ obniży to znacznie koszt dachu. Pozdrawiam
Administrator
Dodano : 22/10/2013
Zastąpienie dachówki blachą na rąbek nie tylko nie "zepsuje" projektu, ale wręcz podkreśli jego nowoczesny charakter. Często w projektach wprowadzamy pokrycie z dachówki mimo tego, że prezentowały by się lepiej z blachą, ponieważ inwestorzy obawiają się tego materiału ze względu na rzekomo wyższe koszty i trudności wykonawcze. W rzeczywistości koszty pokrycia blachą na rąbek są porównywalne z dobrej jakości dachówką zakładkową, a co do trudności w wykonaniu takiego pokrycia to należy po prostu korzystać z wykonawców polecanych przez producentów. Partnerem naszej Pracowni w pokryciach z tytanocynku jest firma Rheinzink, która dysponuje ogólnopolską bazą rzetelnych i przeszkolonych wykonawców, dlatego zachęcamy inwestorów do korzystania z tego materiału.
Łukasz
Dodano : 19/8/2013
Witam, Z racji tego, że już kilka osób pytało o możliwość wykonania okapów w tym projekcie mam pytanie, czy mogą Państwo podać informacje, jak je zaprojektować, aby bryła budynku wyglądała jak najlepiej? W sensie, czy zachować istniejący kąt nachylenia dachu, i tylko wydłużyć okapy – i wtedy o ile? Czy ew. zmieniać kąt nachylenia dachu (jak to ma miejsce w Prostym 1 i 1A)? O ile wtedy wydłużyć okapy? Chyba, że w najbliższym czasie planują Państwo stworzyć wersji z okapami, to wtedy informacje te nie będą nam już potrzebne. Pozdrawiam.
Administrator
Dodano : 19/8/2013
Do chwili obecnej nie planowaliśmy wprowadzenia wersji z okapem, ale teraz poważnie to rozważamy. Do końca sierpnia damy znać w opiniach czy powstanie taki wariant. Jeśli nie, na pewno przedstawimy sugestie dotyczące wprowadzenia zmian przy wydłużeniu okapów koniecznych dla zachowania właściwych proporcji i wyglądu budynku.
Grzegorz
Dodano : 14/8/2013
Witam, czy mozna prosic o jakies nowe informacje? Minelo 2 tygodnie od wypuszczenia projektu a do tej pory brak informacji co do rysunkow szczegolowych jak i kosztorysu.. Dziekuje
Administrator
Dodano : 14/8/2013
Prosimy o cierpliwość i wyrozumiałość. Rysunki szczegółowe zamieścimy w poniedziałek, natomiast na kosztorys trzeba jeszcze trochę poczekać ponieważ pełna dokumentacja nie jest jeszcze ukończona, a tylko na jej podstawie można przygotować rzetelny kosztorys. Mając na uwadze dobro naszych Klientów oraz fakt, że koszty realizacji są często decydującym argumentem w podjęciu decyzji o zakupie projektu nie chcemy zamieszczać kosztorysów opracowanych w oparciu o koncepcję projektową.
Sebastian
Dodano : 13/8/2013
Jesteśmy zainteresowani tym projektem z jednym "ale". Czy istnieje możliwość wydłużenia dachu tak jak to ma miejsce w waszym projekcie "Prosty 1A"??
Administrator
Dodano : 13/8/2013
Tak, okapy można wydłużyć w trakcie adaptacji projektu do warunków miejscowych.
Weronika
Dodano : 01/8/2013
Ja również jestem praktycznie zdecydowana. Proszę o kosztorys :)
Administrator
Dodano : 01/8/2013
Postaramy się go zamieścić tak szybko jak tylko będzie możliwe:)
Marcin
Dodano : 31/7/2013
Witam! Projekt świetny, moim zdaniem lepszy od Atrakcyjnego poprzednika. Mam tylko jedno pytanie: Czy istnieje możliwość powiększenia garażu na dwa auta?
Administrator
Dodano : 31/7/2013
Tak, można to wykonać na etapie adaptacji projektu do warunków miejscowych. Modyfikacja tego typu będzie się wiązała z niewielką zmianą wizualną elewacji frontowej polegającą na przesunięciu ciemnego słupa do narożnika części mieszkalnej.
Pinto
Dodano : 31/7/2013
Bardzo podoba mi się projekt. Rozważam Atrakcyjnego 3 z powiększeniem garażu na dwa auta. Czy w takiej wersji istnieje możliwość podpiwniczenia domu w około jednej trzeciej do połowy, tak aby uzyskać powierzchnie gospodarcze, w tym pralnie? Zależy mi przy tym na rozwiązaniach energooszczędnych.
Administrator
Dodano : 31/7/2013
Tak jak już wspominaliśmy wielokrotnie w opiniach dotyczących różnych projektów, podpiwniczyć można każdy budynek pod warunkiem, że pozwalają na to warunki gruntowe. Dlatego decyzję o ewentualnym doprojektowaniu piwnicy należy podejmować po wykonaniu badań określających nośność podłoża i poziom wody gruntowej. W przypadku projektów typowych doprojektowanie piwnicy jest najczęściej wykonywane przez lokalnych architektów w ramach adaptacji projektu do warunków miejscowych.
Kasia
Dodano : 31/7/2013
Super projekt! Mam jednak jedno pytanie, chciałabym w miejsce dużego okna (balkonowego) w kuchni wstawić wąskie, narożne (przedłużenie okna z elewacji bocznej). Co Państwo sądzą o takiej modyfikacji?
Administrator
Dodano : 31/7/2013
Technicznie jest to oczywiście możliwe, ale taka zmiana skróci o jeden metr ciąg roboczy co znacznie pogorszy funkcjonalność kuchni. Każdy element budynku jest przez nas analizowany i nie pojawia się w projekcie przypadkowo. Wybór długiego, poziomego okna jest również świadomą i przemyślaną decyzją. Jego kształt łamie wprawdzie konsekwentną pionowość stolarki, ale dzięki horyzontalnemu położeniu na całą długość kuchni optycznie ją powiększa i umożliwia wykorzystanie pełnej długości blatu.
Grzegorz
Dodano : 31/7/2013
Witam, projekt rewelacyjny, praktycznie jestem na niego zdecydowany. Czy mozna prosic o informacje kiedy mozna sie spodziewac szczegolowej dokumentacji i kosztorysu?
Administrator
Dodano : 31/7/2013
Niebawem, rysunki szczegółowe pojawia się nieco wcześniej.
Igor
Dodano : 31/7/2013
Expect more!
DOMY Z WIZJA
Dodano : 30/7/2013
Zapraszamy do zapoznania się z nowym przedstawicielem rodziny Atrakcyjnych. Prezentowana wersja stanowi modyfikację projektu „Atrakcyjny 2”. Nowy wariant został nieznacznie powiększony oraz poddany zabiegom mającym na celu obniżenie kosztów realizacji. Przede wszystkim technologia ściany trójwarstwowej z cegłą elewacyjną została zastąpiona ścianą dwuwarstwową wykończoną tynkiem i płytkami klinkierowymi. Z istotnych zmian we wnętrzu trzeba wymienić na parterze powiększenie strefy dziennej oraz likwidację słupów konstrukcyjnych pomiędzy salonem a holem, a na poddaszu powiększenie wszystkich sypialni i garderoby w strefie masterbedroom. Mamy nadzieję, że nowa wersja spełni Państwa oczekiwania.
TOMEK
Dodano : 30/7/2013
Niesamowity projekt !!! To jest właśnie to na co czekałem :) Trafiliście w moje poczucie smaku w 110%. Już nie mogę się doczekać aż pojawi się szczegółowa dokumentacja i kosztorys :)
Pit
Dodano : 30/7/2013
Uff ! Kolejny świetny projekt i wizualizacje godne podziwu. Według mnie jest to najlepsza wersja z rodziny Atrakcyjnych. Trafia w moje gusta zarówno pod względem rozplanowania i wystroju wnętrz, jak i kolorystyki i materiałów użytych na elewacji. Mimo nowoczesnego designu, dom zdaje się być bardzo przytulny i super doświetlony. Well done ! :)
Administrator
Dodano : 30/7/2013
Dziękujemy za pozytywne opinie i cieszymy się, że nowa propozycja przypadła Państwu do gustu.
Dodaj opinię