Projekt domu Prosty 1

Do ulubionychUsuń z ulubionych
Nowoczesny projekt domu Prosty 1
Nowoczesny projekt domu Prosty 1
Nowoczesny projekt domu Prosty 1
Nowoczesny projekt domu Prosty 1
Nowoczesny projekt domu Prosty 1
Nowoczesny projekt domu Prosty 1
Nowoczesny projekt domu Prosty 1

Powierzchnia użytkowa

140,40 m2

Powierzchnia garażu:

+20,30 m2

Powierzchnia kotłowni:

+2,90 m2

Koszt budowy

224 611 zł

Cena projektu

5 820 zł

Dostępność:Od ręki
Ten projekt obejrzało: 5815 osób

Rzuty

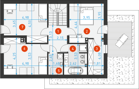
Projekt domu Prosty 1 - Rzut parteru

Rzut parteru

Wersja
podstawowa
Wersja
lustrzana
Prosty 1 - Rzut parteruProsty 1 - Rzut parteru

Powierzchnia użytkowa74,2 m2

1wiatrołap2,1 m2
2garderoba4,4 m2
3łazienka3,2 m2
4hol4,6 m2
5salon + jadalnia35,8 m2
6kuchnia10,1 m2
7pokój gościnny - gabinet13,9 m2
8pom. gospodarcze - kotłownia2,9 m2
9garaż20,3 m2
Drukuj kartę projektu Drukuj kartę projektu

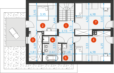
Projekt domu Prosty 1 - Rzut poddasza

Rzut poddasza

Wersja
podstawowa
Wersja
lustrzana
Prosty 1 - Rzut poddaszaProsty 1 - Rzut poddasza

Powierzchnia użytkowa66,3 m2

1komunikacja6,6 m2(6,6 m2)
2sypialnia13,4 m2(16,3 m2)
3garderoba5,9 m2(7,2 m2)
4łazienka6,1 m2(8,0 m2)
5pralnia - suszarnia2,8 m2(4,0 m2)
6pokój 115,2 m2(18,8 m2)
7pokój 216,3 m2(19,9 m2)

0,0 m2 - powierzchnia użytkowa
(0,0 m2) - powierzchnia podłogi

Drukuj kartę projektu Drukuj kartę projektu

Informacje szczegółowe

Pow. użytkowa ogółem

163,60 m2

Ilość pokoi

4

Garaż

1-stanowiskowy

Łazienki (z toaletami)

2

Powierzchnia zabudowy

140,50 m2

Min. szerokość działki

22,91 m

Min. długość działki

19,21 m

Wysokość w kalenicy

8,94 m

Kąt nachylenia dachu

42 °

Powierzchnia dachu

148,00 m2

Kubatura

715,30 m3

Warunki techniczne projektu na rok

2021
KONSTRUKCJA

zgodna z normami EUROKOD

FUNDAMENTY

tradycyjne
ławy i stopy żelbetowe.

ŚCIANY

bloczek silikatowy + styropian
na etapie adaptacji projektu istnieje możliwość zamiany bloczka silikatowego na inny materiał o podobnych parametrach wytrzymałosciowych, np. na pustak ceramiczny.

ELEWACJA

tynk, płyta elewacyjna z włóknocementu
płytę elewacyjną z włóknocementu wykorzystaną jako materiał dekoracyjny można zamienić na etapie adaptacji projektu na inny, np. na deskę elewacyjną.

STROPY

żelbetowe wylewane
na etapie adaptacji projektu istnieje możliwość zmiany technologii stropu na gęstożebrowy lub prefabrykowany.

SCHODY

konstrukcji lekkiej
konstrukcja oraz materiały wykończeniowe schodów przewidziane do indywidualnej aranżacji. Możesz skorzystać z usług naszego Partnera. Formularz ofertowy dostępny w zakładce „kosztorys”.

DACH

dachówka ceramiczna lub cementowa
konstrukcja więźby przewidziana pod pokrycie ciężkie dla I strefy wiatrowej i II strefy śniegowej.

Ogrzewanie

translations.product.gaz_heating

Ogrzewanie alternatywne

Pompa ciepła (płatny dodatek)

Wentylacja

Grawitacyjna
Zobacz dodatki podnoszące energooszczędność

Działka / Nasłonecznienie

Prosty 1 - Działka / NasłonecznienieProsty 1 - Działka / Nasłonecznienie

Sprawdź warunki zabudowy lub wypis z MPZP

Poza minimalnymi wymiarami działki oraz odpowiednim nasłonecznieniem, istotne są również przypisane do każdej nieruchomości tzw. Warunki Zabudowy lub ograniczenia określone w Miejscowym Planie Zagospodarowania Przestrzennego. Jeśli masz wątpliwości oferujemy BEZPŁATNĄ ANALIZĘ WARUNKÓW ZABUDOWY.

Kosztorys

Kosztorys możesz zamówić łącznie z projektem lub oddzielnie korzystając z formularza zamówienia projektu. Kosztorys zamówiony łącznie z projektem jest dostarczany na płycie CD. Zamawiany oddzielnie jest plikiem w wersji elektronicznej wysyłanym na adres e-mail podany w formularzu.

Szacunkowy koszt budowy domu. Poziom cen netto: IV kwartał 2021

Prace ziemne i fundamenty

31 267 zł

Konstrukcja, strop oraz dach

136 830 zł

Stolarka okienna i drzwiowa

56 514 zł
Stan surowy zamknięty(netto)
224 611 zł

Prace ziemne i fundamenty

48 667 zł

Konstrukcja, strop oraz dach

190 484 zł

Stolarka okienna i drzwiowa

62 176 zł
Stan surowy zamknięty(netto)
301 327 zł

Sprawdź pozostałe pozycje w kosztorysie:

Dodatki

W celu poprawienia energooszczędności budynku oferujemy dodatkowe opracowania instalacyjne. Dodatkowe opracowania możesz zamówić łącznie z projektem lub oddzielnie korzystając z formularza zamówienia projektu. Jeżeli któryś z dodatków ma podany dłuższy czas realizacji niż projekt domu to wysyłamy go w określonym terminie oddzielną, bezpłatną przesyłką.

450 zł
Dostępność:Od ręki
450 zł
Dostępność:Od ręki
450 zł
Dostępność:Od ręki

Centrum informacji

Centrum informacji

Co zawiera projekt:

  • 3 egzemplarze projektu architektoniczno-budowlanego
  • 3 egzemplarze projektu technicznego
  • analizę i charakterystykę energetyczną
  • bezpłatną zgodę na zmiany
  • kopię uprawnień architektów i branżystów

Tu znajdziesz pozostałe i niezbędne informacje dotyczące wyboru i zakupu projektu:

Przejdź do centrum informacji

Centrum informacji

Realizacje

Warianty

Projekt domu - Prosty 3A
WT 2021

Prosty 3A

141,10 m2
4
2
2
Projekt domu - Prosty 3
WT 2021

Prosty 3

141,10 m2
4
2
2
Projekt domu - Prosty 2A
WT 2021

Prosty 2A

139,60 m2
4
2
1
Projekt domu - Prosty 2
WT 2021

Prosty 2

145,40 m2
4
2
1
Projekt domu - Prosty 1A
WT 2021

Prosty 1A

140,00 m2
4
2
1

Podobne

Projekt domu - Atrakcyjny 3
WT 2021

Atrakcyjny 3

128,40 m2
4
2
1
Projekt domu - Wygodny 1
WT 2021

Wygodny 1

131,70 m2
4
2
1

Opis projektu

Nowoczesny projekt domu bez okapu dostępny w trzech wersjach. Wariant „1” dzięki odpowiedniemu rozplanowaniu pomieszczeń umożliwia lokalizację na działkach z wjazdem od południa. Prosta forma z dachem pozbawionym okapów odnosi się do archetypu domowego wzorca, ale w nowoczesnym wydaniu, wykorzystującym współczesne materiały i elementy architektoniczne. Układ wnętrza części dziennej domu charakteryzuje połączenie na jednej otwartej przestrzeni salonu, jadalni, klatki schodowej oraz kuchni z wyspą. Nowoczesny charakter budynków oraz funkcjonalne wnętrza plasują projekty z tej rodziny w czołówce najchętniej wybieranych.

Zalety projektu:

  • możliwość lokalizacji na płytkich działkach z wjazdem od południa
  • nieduża powierzchnia użytkowa z zachowaniem optymalnego programu pomieszczeń
  • nowocześnie zaaranżowany układ wnętrza, kuchnia z wyspą
  • taras główny w podcieniu, połączony z salonem i kuchnią
  • dodatkowy taras przy sypialni rodziców na poddaszu
  • aktualna i jednocześnie ponadczasowa forma

Autorzy

arch. Krzysztof Borowski, arch. Piotr Rynkiewicz

Komentarze

  • R

    Robert

    Dodano : 02/4/2017

    Witam . jestem zainteresowany tym projektem . czy ktoś z Państwa buduje / budował ten dom na górnym śląsku . i drugie zapytanie ,. jaka jest różnica orientacyjna w kosztach budowy domy bez okapu a z okapem?

  • Ł

    Łukasz

    Dodano : 02/9/2016

    Witam serdecznie, Czy ktoś budował dom PROSTY 1 w okolicach Rzeszowa(podkarpacia) i byłby skłonny do udzielenia rad oraz możliwości zobaczenia domu? Pozdrawiam

  • j

    jacuś

    Dodano : 08/8/2016

    Drogie domy z wizja, poprosze o Wasza alternatywę dla płyty włóknisto-cementowej, moze byc tu a moze byc tez na maila - drewno zastosowane w realizacjach inwestorów podoba mi sie, niemniej jednak jest to materiał kłopotliwy w konserwacji i wolalbym zostac przy zblizonej kolorystyce jak na wizualizacjach projektu (brame tylko zrobie w kolorze, bo mam pojedyncza po adaptacji Waszego projektu), pomozecie ?

    • Administrator

      Dodano : 08/8/2016

      Pomożemy !:) jako alternatywę dla płyty włóknisto-cementowej proponujemy spieki ceramiczne czyli płyty Laminam. Są lekkie, odporne na warunki atmosferyczne i stosunkowo proste w montażu. Produkt znajdzie Pan na stronie: www.laminam.pl

  • K

    Klaudia

    Dodano : 05/7/2016

    Witam Czy jest możliwość otrzymania namiaru na firme która wykonywała ogrodzenie domu Prosty 1 ? Zdjęcia domu są wystawione w Realizacjach

    • Administrator

      Dodano : 05/7/2016

      Nie jesteśmy pewni, czy to dokładnie ten rodzaj ogrodzenia, ale wygląda nam to na system ogrodzeniowy Master I firmy Profess: http://www.ogradzamy.com.pl/

  • M

    Michał

    Dodano : 29/5/2016

    Witam, Czy w przypadku tego projektu wchodzi w grę rezygnacja z tarasu i przesunięcie w to miejsce salonu - 'w prawo', a co za tym idzie przesunięcie schodów bardziej w 'lewo', żeby ściany nośne się zeszły. A doświetlenie kuchni zrealizować za pomocą okna nad blatem kuchennym jak w 'atrakcyjnych' lub 'doskonałych'?

    • Administrator

      Dodano : 29/5/2016

      Technicznie to jest możliwe do wprowadzenia, ale likwidacja podcienia tarasowego spowoduje, że bryła budynku będzie w wyglądzie bardziej masywna.

  • D

    Dominik

    Dodano : 21/5/2016

    Witam, Jestem zainteresoany projektem, interesowałaby mnie wersja z 2 stanowiskowym garażem (który jest jak widzę z dyskusji i zdjeć z realizacji możliwy). Za garażem w projekcie jest wolna przestrzeń na taras, czy jest możliwe zabudowanie jej tak aby na parterze powstała przestrzeń "master bedroom" z łazienką i garderobą i sypialną w miejscu gabinetu (wejcie do łazienki i garderoby bezpośrednio z sypialni). Chałbym jescze zmieścić kotłownie w przestrzeni za garażem a dotychczasową kotłownię zastąpić spiżarką. kotłownia miałaby wejście z garażu. Czy taka modyikacja byłaby możliwa?

    • Administrator

      Dodano : 21/5/2016

      Modyfikacja tego typu jest możliwa, oczywiście garderoba będzie wtedy pomieszczeniem przejściowym do łazienki. W takim układzie sugerowalibyśmy skrócenie głębokości garażu z 635 cm na 575 cm, aby garderoba i łazienka były bardziej funkcjonalne. Taka zmiana ma tez mankamenty - likwidacja podcienia tarasowego spowoduje, że bryła budynku od tej strony stanie się bardziej masywna i mniej atrakcyjna wizualnie.

  • S

    Szymon

    Dodano : 17/5/2016

    Witam. Nawiążę do tematu obniżania kosztów. Jaki materiał rekomendujecie jako zamiennik dla płyt elewacyjnych, który pozwoli obniżyć koszty nie tracąc efektu wizualnego elewacji?

  • J

    Jacek

    Dodano : 24/3/2016

    Witam, Poszukujemy kogoś w woj. dolnośląskim (najchętniej okolice Wrocławia) kto budował na podstawie projektu "Prosty 1" i kto podzieli się wrażeniami z budowy - oraz pokaże w praktyce jak wyszło :)... Pozdrawiam, Jacek

  • j

    jacus

    Dodano : 02/3/2016

    dzien dobry, wszystkie projekty z kolekcji "prosty" bardzo mi sie podobaja, ale musze miec baczenie na koszty.. czy prosty 1 patrzac na usrednione ceny w wycenie developerskiej bedzie faktycznie najtanszym projektem ? pytanie 2 - czy brak okapów na dachu nie bedzie skutkowal zaciekami na elewacji/oknach lub innym dyskomfortem w późniejszym użytkowaniu ? czy takie rozwiazanie konstrukcji dachu ma jeszcze jakies minusy ? dziekuje za odpowiedzi i pozdrawiam

    • Administrator

      Dodano : 02/3/2016

      Prosty 1 będzie tańszy od Prostego 1A głównie ze względu na mniejszą powierzchnię dachu bezokapowego. Nie ma absolutnie żadnych racjonalnych argumentów uzasadniających obawy do tego rodzaju formy dachu. Jeśli będzie prawidłowo wykonany to na pewno nie wystąpią żadne problemy eksploatacyjne. Widzieliśmy już kilka naszych projektów zrealizowanych z taki dachem, które były użytkowane od kilku lat i żaden z inwestorów nie narzekał. Wracając do kosztów budowy, jeśli ma Pan ograniczony budżet to w tym projekcie można je znacząco obniżyć rezygnując np. z płyty elewacyjnej.

  • P

    Piotr

    Dodano : 29/2/2016

    Witam, Zastanawiam się co zrobić z garażem... mogę poszerzyć go o całe 215 cm czyli w sumie miałby 5,4 m wewnątrz . Zależy mi, żeby jednak zmieścić tam 2 samochody. Niestety z tego co udało mi się doczytać szersza brama nie dźwignie płyt a 2 mniejsze bramy jak w realizacji nie wchodzą w gre ze względu na brak metrów na działce :) Czy można uzyskać podobny efekt zlicowania szerszej bramy garażowej z elewacja nie obciążając jej ?

    • Administrator

      Dodano : 29/2/2016

      Można, trzeba zastosować lżejszy materiał zamienny, mamy alternatywę dla płyty włóknisto-cementowej.

  • I

    Iwona

    Dodano : 03/5/2015

    Piekny projekt. Brakuje mi garażu dwu stanowiskowego i choćby częściowego podpiwniczenia. Czy jest taka możliwośc.

    • Administrator

      Dodano : 03/5/2015

      Obie zmiany można bez problemu wykonać na etapie adaptacji projektów do warunków miejscowych. W przypadku podpiwniczenia przed podjęciem decyzji o jej wykonaniu należy koniecznie wykonać badania gruntowe sprawdzające m.in. poziom lustra wody gruntowej.

  • M

    MONIKA

    Dodano : 20/1/2015

    witam! jesteśmy w trakcie realizacji projektu PROSTY 1 z uwzględnieniem proponowanej przez Państwa kolorystyki. stoimy przed wyborem koloru rolet, które w naszym przypadku są niezbędne. dużym ułatwieniem byłaby podpowiedź fachowców.

    • Administrator

      Dodano : 20/1/2015

      Prosimy o kontakt mailowy lub telefoniczny, doradzimy Państwu najlepsze rozwiązanie.

  • M

    Mirek

    Dodano : 05/1/2015

    Jak uzyskali Państwo równą linię elewacji? Czy inna jest grubość ocieplenia? Na dole mamy płyty włóknisto-cementowe na podkonstrukcji, na górze tynk na siatce? Wydaje się że ocieplenia jest więcej pod tynkiem. Czy zatem dolna część budynku spełnia parametry wymagane przez normy?

    • Administrator

      Dodano : 05/1/2015

      Tak, pod płytą jest cieńsza izolacja termiczna. W przypadku zastosowania na fragmentach budynku ściany trójwarstwowej wentylowanej zawsze zakładamy grubszą izolację części tynkowanej, tak aby ściana wentylowana spełniała normy.

  • M

    Marcin

    Dodano : 19/10/2014

    Czy pojawią się nowe zdjęcia z realizacji innych inwestorów w dziale "Realizacje". W obecnej, jedynej, opisują Państwo, że zamieszczą zdjęcia z finalnymi kolorami na elewacji.

    • Administrator

      Dodano : 19/10/2014

      Otrzymaliśmy trochę "obiecujących" zdjęć od innych inwestorów, ale ewentualne sesje zdjęciowe i publikacja muszą poczekać do wiosny przyszłego roku.

  • M

    Monika

    Dodano : 11/8/2014

    Mam pytanie odnośnie elewacji, a mianowicie ciekawa jestem z czego wykonana elewacja na części parterowej- chodzi mi o te szarą część. I jeśli to nie jest płytka elewacyjna, to czy to jest specjalny tynk elewacyjny, bo daje zupełnie inny efekt niż zwyczajnie spotykane tynki? Dziękuję za odpowiedź!

    • Administrator

      Dodano : 11/8/2014

      To płyty włóknisto-cementowe, kiedyś oferowane jedyne przez firmę Euronit, obecnie jest znacznie więcej producentów.

  • G

    Grzegorz

    Dodano : 30/6/2014

    Czy wizualizacja schodów do autorska wizja projektanta? Z tego co można zauważyć, konstrukcja nośna jest kotwiona jedynie na dole i górze, bez żadnych wzmocnień pomiędzy, a patrząc przez pryzmat materiałów wykorzystanych (metal + beton + drewno), konstrukcja musi dość sporo ważyć. Czy coś takiego jest w ogóle wykonalne? (oczywiście w ramach jakiegoś rozsądnego budżetu 15 – 20k PLN)

    • Administrator

      Dodano : 30/6/2014

      Tak, schody to nasza wizja i jak najbardziej do wykonania, konstrukcja jest mocowana również na wysokości zabiegu do ściany. Niestety nie da się ich wykonać w proponowanym budżecie. Orientacyjny koszt takich schodów to ok. 40 tys. PLN

  • M

    Marcin

    Dodano : 11/5/2014

    Drodzy projektanci mam dwa pytania do tego projektu: 1) czy istnieje wersja z garażem na dwa stanowiska? Na naszej działce dom nie może być szerszy jak 18m. 2) czy istnieje możliwość zastosowania lukarny w dachu od strony frontu i tyłu - podobnie jak w projekcie Nowoczesny 2.

    • Administrator

      Dodano : 11/5/2014

      1. Nie mamy takiej wersji, ale powiększenie garażu można bez problemu wykonać przy pomocy lokalnego architekta na etapie adaptacji do warunków miejscowych. W Państwa przypadku, aby nie przekroczyć maksymalnej szerokości budynku garaż należy powiększyć o 2,1 m w osiach konstrukcyjnych, co daje szerokość 5, 45 m w świetle pomieszczenia. Według zasad ergonomii jest to najmniejsza szerokość jaką można stosować w garażach przeznaczonych na dwa samochody.<br /> 2. Lukarnę można wykonać, ale odradzamy ponieważ sama nazwa projektu definiuje najlepszą formę dla tego domu. Im prostrza tym lepiej.

  • E

    Emi

    Dodano : 10/5/2014

    Witam, czy możliwe jest przerobienie budynku tak, aby taras i salon były z tyłu budynku, a kuchnia z jadalnią i schodami z przodu? Zależy mi na tym, aby taras wychodził na ogród. A jeżeli tak, to jaki byłby to koszt?

    • Administrator

      Dodano : 10/5/2014

      Jeśli nie odpowiada Pani projekt Prosty 2 to taką modyfikację można wykonać poprzez odbicie lustrzane strefy dziennej na parterze. Przeprowadzaniem tego typu zmian zajmują się najczęściej współpracujące z nami biura na terenie całego kraju. Zapraszamy do działu Partnerzy w celu odnalezienia lokalnego biura partnerskiego, które wyceni korekty i przeprowadzi adaptację do warunków miejscowych.

  • M

    M

    Dodano : 04/4/2014

    Witam, A pod ponizszym linkiem mozna obejzec realizacje prostego 1 (lustrzane odbicie) w technologii prefabrykowanej: http://www.multicomfort.pl/realizacje/70/2/

  • k

    kasia

    Dodano : 16/3/2014

    witam,mam pytanie czy jest mozliwosc w tym projekcie( bo jest idealny dla naszej rodziny) powiekszyc garaz na dwa samochody

    • Administrator

      Dodano : 16/3/2014

      Tak, oczywiście garaż można poszerzyć. Taką zmianę widać np. na zdjęciach z realizacji.

  • B

    Bartek

    Dodano : 09/2/2014

    a gdyby tak z gabinetu zrobić kuchnię, zrezygnować tam z drzwi na taras, powiększając okno na tylnej ścianie budynku, a ten taras zabudować powiększając garaż - takie pom. gospodarcze. Można by też wtedy zrezygnować ze ścianki koło schodów otwierając trochę kuchnię i zostawić tylko filar (bo chyba nośny). W miejscu gdzie oryginalnie jest kuchnia była by duża jadalnia, ew. kącik gabinetowy/biblioteka...

    • Administrator

      Dodano : 09/2/2014

      Taka zmiana jest jak najbardziej możliwa, pod warunkiem, ze inwestor akceptuje "stratę" pokoju na parterze.

  • a

    adan

    Dodano : 28/1/2014

    Witam, czy jest mozliwosc przerobka projektu w stylu cofniecia garazu i wybudowaniu za nia kotlowni, i wyrownanie calego obrysu budynku do typowego prostokata, pozostawiajac tylko wciecie pod taras, czy taka zmiana mocno wplynie na sam budynek

    • Administrator

      Dodano : 28/1/2014

      Oczywiście taka zmiana jest możliwa, ale wysunięcie budynku akcentuje wejście na elewacji frontowej dlatego proponowaną przez Pana modyfikację sugerujemy ograniczyć jedynie do przeniesienia kotłowni za garaż.

  • B

    Bartek

    Dodano : 25/1/2014

    Witam. będzie zaktualizowany kosztorys? elewacja i roboty zewnętrzne - ponad 94 tyś? trochę dużo - co wchodzi w zakres tych robót? jakieś szczególnie drogie materiały/rozwiązania? można zastąpić czymś tańszym?

    • Administrator

      Dodano : 25/1/2014

      Materiałem, który znacznie podraża koszt wykonania elewacji jest płyta włóknisto-cementowa. Można ten materiał zastąpić tańszą alternatywą.

  • R

    RAFAŁ

    Dodano : 27/10/2013

    Witam, Czy w najbliższej przyszłości przewidują Państwo dostosowanie tego projektu do wymagań standardów NF15 i NF40 ? Czy takie dostosowanie jest w tym przypadku możliwe ? Moim celem jest zbliżenie się do granicy 25 kWh/m2/rok dla EUco i ogrzewanie domu energią elektryczną (i jej produkcja przez panele fotowoltaiczne 10kW) Z góry dziękuję za wszelką pomoc.

    • Administrator

      Dodano : 27/10/2013

      Już wkrótce na stronie pojawi się możliwość zamówienia do większości projektów dostępnych w naszej ofercie specjalnej instrukcji modyfikacji niezbędnych do spełnienia kryteriów programu dopłat NFOŚiGW w kategorii NF40. Na postawie tej instrukcji arch. adaptujący będzie mógł wprowadzić konieczne zmiany do uzyskania dopłaty.

  • M

    Michał

    Dodano : 11/10/2013

    Seria projektów "prosty" podoba mi się od dawna. W końcu znalazłem również działkę, która spełnia moje oczekiwania, a jaj ukształtowanie pasuje do projektu Prosty 1. Problemem jest jednak miejscowy plan zagospodarowania przestrzennego, który zawiera następujący zapis "dach główny symetryczny, czterospadowy z kalenicą, o kącie nachylenia 35-45 stopni". Czy można jakoś zaradzić temu zapisowi? Albo poprzez zmianę w projekcie (tak aby jednak bryła budynku nie straciła swojej prostoty i uroku), albo może jest jakaś procedura, aby uzyskać zgodę na jakieś odstępstwa od miejscowego planu zagospodarowania przestrzennego?

    • Administrator

      Dodano : 11/10/2013

      W tym domu zmiana dachu z dwuspadowego na czterospadowy oznaczać będzie konieczność wykonania nowego projektu. Przy obecnych wymiarach budynku dach tego typu mocno by ograniczał funkcjonalność poddasza. Ponieważ obecna współczesna forma Panu odpowiada przypuszczamy, że wizerunek domu po zmianie dachu raczej nie przypadnie Panu do gustu. Zapisy miejscowego planu zagospodarowania są niestety wiążące, wprawdzie ustawodawca założył możliwość zmiany lub korekt miejscowych planów, ale ograniczając ją długotrwałą procedurą administracyjną spowodował, że jest to możliwość teoretyczna.

  • P

    Piotr

    Dodano : 14/8/2013

    Jestem w fazie wykonczenia domu a oto link do wizualizacji wnetrz: https://www.facebook.com/media/set/?set=a.280226145447097.1073741828.185391378263908&type=1 Lazienka i pralnia na poddaszu zostaly polaczone w jedna duza lazienke.

  • K

    Katarzyna

    Dodano : 29/7/2013

    Proszę o informację, jaka firma wykonuje tego typu schody wewnętrzne? Dziękuję!

  • N

    Natalia

    Dodano : 11/7/2013

    Witam kiedy mozna spodziewać sie zdjęć z realizacji projektu. Czy są już inwestorzy, kytórzy chcialiby pokazać światu swój "Prosty 1" :-)) pozdrawiam,

  • K

    Kasia

    Dodano : 24/6/2013

    Projekt Prosty1 jest prawie że idealnym projektem dla mojej rodziny...z jednym małym ale - brakuje spiżarni. Próbowaliśmy już z architektem umiejscowić spiżarnię przy kuchni, robiąc z bocznego lewego okna wejście do spiżarni i zabudowanie kawałka tarasu, ale projekt stracił na uroku a kuchnia światło. Może Państwo podpowiedzą jakieś rozwiązanie :)

    • Administrator

      Dodano : 24/6/2013

      Obawiamy się, że umieszczenie spiżarni w bezpośredniej bliskości kuchni jest raczej niemożliwe. Koncepcja projektu świadomie nie zakładała tego pomieszczenia ponieważ w założeniu miał to być dom zlokalizowany w okolicach dużych aglomeracji miejskich gdzie tryb życia ukierunkowany na pracę redukuje wykorzystanie kuchni do weekendów. Były pomysły niektórych inwestorów do wprowadzenia schodów żelbetowych i wykonania spiżarni pod schodami, ale taki zabieg stanowczo pogarsza ergonomiczność jadalni.

  • A

    Agnieszka

    Dodano : 03/5/2013

    Witam, czy istnieje możliwość dostosowania tego projektu do działki o szer. 21m?

    • Administrator

      Dodano : 03/5/2013

      Tylko pod warunkiem rezygnacji z garażu i zastąpieniem go np. wiatą.

  • D

    DOMY Z WIZJA

    Dodano : 25/3/2013

    Z blachy cynkowo-tytanowej.

  • G

    Grzegorz

    Dodano : 22/3/2013

    Witam, z jakiego materiału są wykończone kominy ponad dachem ?

    • Administrator

      Dodano : 22/3/2013

      Z blachy cynkowo-tytanowej.

  • j

    joanna

    Dodano : 16/3/2013

    kiedymozna a się spodziewać zdjęć z realizacji tego projektu?

    • Administrator

      Dodano : 16/3/2013

      Mamy nadzieję, że w okresie wakacyjnym. Otrzymujemy sygnały od niektórych inwestorów, że zbliżają się do fazy stanu deweloperskiego, dlatego na pewno w okresie wakacyjnym pojawi się materiał zdjęciowy związany z tym projektem, ale jeszcze bez prezentacji wnętrz.

  • K

    Konrad

    Dodano : 15/1/2013

    czy premiera nowej odsłony strony została przesunięta na inny termin? Czekam z niecierpliwością na nowości! pozdrawiam

    • Administrator

      Dodano : 15/1/2013

      Samo uruchomienie strony nie leży po naszej stronie. Firma, która się tym zajmuje miała jakieś drobne problemy techniczne, które mamy nadzieję zostaną usunięte najpóźniej do końca tygodnia.

  • K

    Konrad

    Dodano : 09/1/2013

    witam kiedy pojawią sie obiecane zdjęcia z realizacji oraz kiedy pracownia uaktualni swój serwis www zgodnie z obietnicami. :-))

    • Administrator

      Dodano : 09/1/2013

      Premiera serwisu jest zaplanowana na najbliższy poniedziałek czyli 14.01.2013 r. Zapraszamy. Niestety nie zamieścimy tam jeszcze zdjęć z realizacji tego domu, ale jesteśmy w kontakcie z kilkoma inwestorami, którzy są w trakcie budowy więc mamy nadzieję, że wiosną na stronie pojawi się pierwszy materiał prezentujący Prostego "na żywo".

  • D

    Dominik

    Dodano : 07/1/2013

    Gdzie mogę znaleźć kalkulację na wykonie dachu z tradycyjnymi okapami ( wysunięte + rynny ) ?

    • Administrator

      Dodano : 07/1/2013

      Kosztorysy do wersji okapowych będą dostępne na nowej wersji naszej strony internetowej. Premiera strony nastąpi w poniedziałek 14 stycznia 2013r. Zapraszamy

  • D

    Dominik

    Dodano : 07/1/2013

    Witam! Jak wykończona jest "nieużytkowa" część tarasu nad garażem? Jak rozwiązany jest problem odprowadzania wody przy takim rozwiązaniu?

    • Administrator

      Dodano : 07/1/2013

      Dach płaski jest uszczelniony membraną EPDM balastowaną żwirem. Odprowadzenie wody następuje przy pomocy wpustu dachowego umieszczonego w warstwie termoizolacji, odprowadzającego wodę do rynny.

  • O

    Olivier

    Dodano : 23/11/2012

    Witam, proszę o okreslenie jaką kwotę należałoby przeznaczyć na wykończenia wnętrz tak aby uzyskać efekt odzwierciedlajacy standard prezentowany na wizualizacjach?

    • Administrator

      Dodano : 23/11/2012

      Wykończenie wnętrza na wysokim poziomie jakościowym i estetycznym to kwota zaczynająca się od ok.1600 zł za 1 m2 powierzchni użytkowej, górny limit tej stawki ograniczają jedynie możliwości finansowe inwestora i wyobraźnia projektantów. Proszę pamiętać , że do wyceny wnętrza uwzględnia się zazwyczaj strefę dzienną z holem, salonem, jadalnią i kuchnią oraz łazienki, czasami dochodzi do tego gabinet lub główna sypialnia.

  • A

    Agnieszka

    Dodano : 06/11/2012

    Projekt super, wyjątkowy, nowoczesny wyróżniający się. Marzę o takim domu. Budowałabym go na wsi, więc czy przy tej wielkości kotłowni możliwe jest zastosowanie ogrzewania na paliwa stałe: węgiel, drewno?

    • Administrator

      Dodano : 06/11/2012

      W obecnym układzie kotłownia jest za mała do instalacji pieca na paliwo stałe. Istnieją dwie możliwości zaadaptowania projektu umożliwiające wykorzystanie tego rodzaju pieca. Pierwsza to powiększenie kotłowni kosztem gabinetu i przesunięcie ściany dzielącej oba pomieszczenia do poziomu linii ściany garażowej. Drugi wariant modyfikacji to przeniesienie kotłowni w miejsce obecnego podcienia za garażem. Jest to dosyć prosta zmiana, która wymaga przede wszystkim zmiany lokalizacji komina.

  • W

    Wiktor

    Dodano : 17/10/2012

    dzień dobry, PROSTY 1 jest super! Gratuluję przejrzystych i funkcjonalnych rozwiązań. Jest wiele pracowni ale PROJEKTY W WIZJĄ sa naprawdę wizjonerskie.Piszę to ponieważ widzę, że ktoś tu robi kawał dobrej roboty :-) Pytanie mam odnośnie projektu- czy mozliwe są do zamontowania rolety ale bez zmniejszania swiatła przeszkleń i czy wysokość kondygnacji może byc po wylewkach 2,80 m (parter i piętro)? pozdrawiam,

    • Administrator

      Dodano : 17/10/2012

      Rozwiązaniem problemu rolet jest podniesienie nadproży, jeśli dodatkowo planuje Pan podwyższyć strop to obie zmiany można wykonać jednocześnie na etapie adaptacji do warunków miejscowych.

  • L

    Luiza

    Dodano : 17/10/2012

    witam ponownie dziękuję za odpowiedzi na pytania . Czy bedą jakieś zdjęcia z realizacji projektu? albo panorama? pozdrawiam

    • Administrator

      Dodano : 17/10/2012

      Mamy nadzieję, że zdjęcia pojawia się niebawem. Projekt jest popularny i na pewno część inwestorów jest już na etapie stanu deweloperskiego. Jak tylko otrzymamy informacje od budujących o zakończeniu prac zewnętrznych postaramy się zamieścić zdjęcia. Wizualizacja panoramy wnętrza ukaże się na zaktualizowanym serwisie www, co wkrótce nastąpi.

  • L

    Luiza

    Dodano : 16/10/2012

    a jak opiniują panowie zmiany o które pytałam wcześniej(pomijając płytę fundamentową oczywiście :-)?)

    • Administrator

      Dodano : 16/10/2012

      Odpowiedź znajduje się poniżej Pani wcześniejszego zapytania.

  • L

    Luiza

    Dodano : 15/10/2012

    chiałam dopytać jeszcze czy przewidują panowie mozliwość wybudowania domu na płycie fundamentowej zamiast na tradycyjnym fundamencie. Na naszej działce podłoże jest gliniaste

    • Administrator

      Dodano : 15/10/2012

      Oczywiście taka zmiana jest jak najbardziej możliwa. Ponieważ inwestorzy dysponują działkami o odmiennych warunkach naturalnych i ograniczeniach administracyjnych modyfikacje tego typu powinny być przeprowadzane przez lokalnych architektów w ramach adaptacji projektu do warunków miejscowych.

  • L

    Luiza

    Dodano : 14/10/2012

    witam, chciałam dowiedzieć się czy możliwe są do zastosowania w tym projekcie -wersja dachu bezokapowa-okna kolankowe. Dodatkowo chciałabym zamienić pralnie na piętrze w łazienkę dla dzieci, zamienić układ pomieszczeń na pietrze tj.: z pokoi dziecięcych zrobić sypialnię dla mnie i męża łazienkę i garderobę a łazienkę i garderobę w obecnej wersji przerobić na pokój dziecięcy.WSZYSTKIE TE ZMIANY BEZ PRZESUWANIA ŚCIAN (likwidacja jedynie ścianki działaowej pomiędzy obecną garderobą a łazienką)Dzieciaki miałyby wyjście na swój taras a my większą sypialnię. Pokoje dzięki oknom kolankowym tak mi sie zdaje nabrałyby przestrzeni (optycznie). Znajomi mają wstawione takie okna w pokojach na poddaszu- efekt jest rewelacyjny. Projektanci, czy takie rozwiązanie jest możliwe? Dodatkowo na parterze kotłownie funkcyjnie połączyć z pralnią -wejście zrobić od korytarza zamiast og garażu. Ostatecznie likiwdacja wejścia z garażu do domu, a w ten sposób powstałej garderobie przy drzwiach wejściowych wstawić bardzo wąską witryne do podłogicelem doświetlenia pomieszczenia. UFFF... to chyba wszystko -prosze o opinię projektantów czy poprawki są możliwe. Jeśli tak ,będzie to oznaczało że Wasz projekt moge brać pod uwagę do zakupu. Z góry dziękuję za szybką odpowiedź.

    • Administrator

      Dodano : 14/10/2012

      Proponowane przez Panią zmiany w układzie funkcjonalnym zarówno na parterze jak i poddaszu domu są możliwe do wprowadzenia. Właściwie bardziej istotne są zmiany w części instalacyjnej - wodno-kanalizacyjnej niż architektoniczno - budowlanej. Dzięki modyfikacjom parteru czyli połączeniu kotłowni z łazienką oraz doświetleniu garderoby nie ma problemu z wentylacją obu pomieszczeń , która pojawiała by się na poddaszu w jednym z pokoi dzieci. Po zmianie układu i poddasza okna kolankowe raczej nie są wskazane ponieważ ich montaż rozdziela okap i wymusza odprowadzenie wody z części połaci dodatkową rynną , która w tym przypadku wychodzi nad zadaszeniem wejściowym i garażem. W tym projekcie nie widzę użytkowego powodu do wprowadzania tego typu okien ponieważ oba pokoje dzieci są doświetlone wysokimi oknami balkonowymi umieszczonymi w ścianie szczytowej. Okna kolankowe są przede wszystkim przeznaczone do poddaszy, w których nie ma możliwości doświetlenia ściennego.

  • A

    Agnieszka

    Dodano : 12/10/2012

    Mam pytanie odnośnie okien i drzwi zewnętrznych, jakiej są wysokości?

    • Administrator

      Dodano : 12/10/2012

      230 cm

  • J

    Joanna

    Dodano : 27/1/2012

    Witam, kupiliśmy u Państwa projekt "dom z charakterem 3" w 2010 roku. Jesteśmy na etapie wykańczania, bardzo nam się podoba elewacja zastosowana w nowych projektach, proszę o informację co to za materiał (z kosztorysu wynikałoby, że jakiś kamień, bo bardzo drogo to wychodzi) i czy ewentualnie można go zastąpić np. płytami elewacyjnymi (np. z f-my euronit).

    • Administrator

      Dodano : 27/1/2012

      W "rodzinie" projektów Prosty i Wygodny zastosowaliśmy jako wykończenie elewacji właśnie płytę włóknisto-cementową firmy Euronit. Proszę jednak pamiętać, że wydatki związane z wykończeniem elewacji w technologii wentylowanej dowolnym materiałem - kamieniem , drewnem lub tego rodzaju płytą są porównywalne, a więc wybór materiału determinuje raczej gust odbiorcy niż koszty jego zastosowania.

  • R

    RafiX

    Dodano : 21/1/2012

    Witam, Projekt jest bardzo udany i zastanawiamy się poważnie nad jego wyborem. Mam tylko ważne pytanie dotyczące kalkulatora energetycznego - jak to możliwe, że zmiana rodzaju paliwa z gazu ziemnego na gaz płynny powoduje, że ogrzewanie + cwu stają się droższe o ponad 6000 zł rocznie ??? Mam nadzieję, że to tylko jakiś błąd w oprogramowaniu. Mam nadzieję, że ogrzewanie tego domu gazem płynnym nie jest droższe od ogrzewania prądem (co pokazuje kalkulator) ... Pozdrawiam i gratuluję projektu.

    • Administrator

      Dodano : 21/1/2012

      W obliczeniach nie ma błędu, poniżej w kilku punktach wyjaśnienie różnicy cenowej: 1.Cena m3 gazu ziemnego to około 2 zł {cena średnia uwzględniająca opłaty abonamentowe i za przesył} 2.Cena m3 gazu płynnego w fazie gazowej to około 10 zł {cena średnia, u każdego dostawcy i dla każdego klienta cena może być ustalana indywidualnie} 3.Wartość kaloryczna gazu płynnego jest o 2,4 razy większa od wartości kalorycznej gazu ziemnego, czyli musielibyśmy zapłacić 4,8 zł żeby uzyskać taką samą ilość energii z gazu ziemnego, czyli cena energii z gazu płynnego jest o {10 zł / 4,8} = 2,1 razy większa niż cena energii uzyskanej z gazu ziemnego. Przykładowe obliczenie nie uwzględnia dodatkowych kosztów związanych z kupnem lub dzierżawą i montażem zbiornika na gaz LPG.

Dodaj opinię

© 2026 DOMY Z WIZJĄ Sp. z o.o. Wszelkie prawa zastrzeżone
Projekt i realizacja:Tworzenie stron internetowych - Jellinek