- Projekty domów
- Popularne
- Wielkość
- Kondygnacje
- Garaż
- Dach
- Działka
- Rodzaj zabudowy
- Inne kategorie projektów
- Projekty domów dla developera
- Projekty domów z pompą ciepła
- Projekty domów z rekuperacją
- Projekty domów z ogrzewaniem podłogowym
- Projekty domów z wyspą kuchenną
- Projekty domów z antresolą
- Projekty domów z wnętrzami
- Projekty domów z poddaszem do adaptacji
- Nietypowe projekty domów
- Projekty domów z płytą fundamentową
- Projekty premium
- Panoramy
- Realizacje
- Centrum informacji
- Dla dewelopera
- Kontakt
























Komentarze
Piotrek
Dodano : 14/4/2017
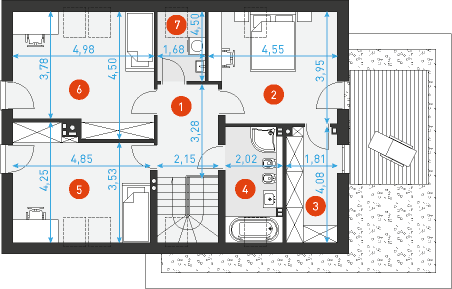
Witam. Czy jest możliwość powiększenia powierzchni kuchni poprzez zlikwidowanie tego tarasu w narożniku budynku. Czy jest możliwość zmiany wielkości garażu tzn. wydłużenie oraz poszerzenie np o 1 m.?
Administrator
Dodano : 14/4/2017
Obie zmiany są jak najbardziej możliwe.
Karolina
Dodano : 20/1/2017
Dzień dobry. Chciałabym uzyskać informację czy jest możliwość wybudowania tego domu bez garażu ? Oraz czy problemem byłaby zamiana kotłowni, tj. utworzenie kotłowni w miejscu łazienki i garderoby a przeniesienie łazienki na miejsce kotłowni ?
Administrator
Dodano : 20/1/2017
Jak najbardziej takie zmiany są możliwe. Wykreślenie garażu oraz zmianę funkcji pomieszczeń można bez problemu wprowadzić na etapie adaptacji projektu do warunków miejscowych.
Sonia
Dodano : 09/4/2016
Witam, czy jest możliwość poszerzenia garażu o jedno stanowisko?
Administrator
Dodano : 09/4/2016
Oczywiście, można to bez problemu wykonać na etapie adaptacji projektu do warunków miejscowych. Na jedynej realizacji projektu Prosty 1 dostępnej na naszej stronie widać właśnie taki powiększony garaż.
Martyna
Dodano : 22/3/2016
Witam, czy jest mi ktoś w stanie doradzić, chodzi o dach bez okapu(wady,zalety). Jestem przed budową domu i mam dylemat jeśli chodzi o zakończenie dachu.. Pozdrawiam
Ania
Dodano : 01/7/2014
Witam, czy w projektach PROSTY jest możliwość podniesienia poddasza do pełnego piętra? Chciałabym uniknąć skosów lub pozostawić je w minimalnej wersji.
Administrator
Dodano : 01/7/2014
Technicznie taka modyfikacja jest możliwa, ale odradzamy. Budynki dwukondygnacyjne z dachem dwuspadowym wyglądają dobrze jeśli nie są zbyt szerokie. Ten dom jest proporcjonalnie za szeroki do tego rodzaju formy, a zatem taka zmiana wymagałaby istotnych korekt konstrukcyjnych i funkcjonalnych wykraczających znacznie poza zakres standardowej adaptacji.
PIOTR
Dodano : 27/9/2013
Witam serdecznie, proszę o informację, czy możliwa jest zmiana w kuchni, polegająca na wstawienie "standardowego" okna tak, aby pod oknem można by umieścić szafki kuchenne z blatem?
Administrator
Dodano : 27/9/2013
Jest możliwa, ale w takiej sytuacji zalecamy montaż okna narożnego, które znacznie lepiej komponuje się z nowoczesną formą budynku. Oczywiście skraca to odcinek do zamontowania szafek nadblatowych, ale nieznacznie bo okno przeszklonego narożnika od strony tarasu może być krótsze od części na elewacji frontowej np. na szerokość 90-120cm dzięki czemu pozostanie 245-215 cm na zamontowanie górnych szafek.
Ola
Dodano : 05/7/2013
Pewnie podobnie jak wielu Państwa klientów mam dylemat z wyborem projektu pomiędzy Prostym 2 a Wygodnym 1 lub 2. Zadecydują walory użytkowe dlatego mam pytanie zwłaszcza do tworzących wizualizację - czy w Prostym 2 dałoby się tak zaprojektować kuchnię nie tracąc zabudowania wnęki a żeby umieścić jakoś blat, żeby można przysiąść i zjeść śniadanie i nie lecieć do wielkiego stołu - może domurować ściankę? Drugie pytanie - łazienka na poddaszu jest dość mała, w zamiana większe pokoje ale czy wg projektantów zmieści się tam wanna zamiast prysznica?
Administrator
Dodano : 05/7/2013
Wprowadzenie fragmentu blatu jadalnego w obecnym układzie wnętrza byłoby dosyć kłopotliwe i mało funkcjonalne. Taka zmiana jest możliwa , ale wymagałaby przeprowadzenia korekty opisanej w opinii poniżej tzn. przeniesienia kominka na ścianę szczytową domu i w jego miejsce utworzenie niewielkiego blatu-baru rozdzielającego kuchnię od salonu. Taką zmianę można wykonać na etapie adaptacji projektu do warunków miejscowych.
TOMASZ
Dodano : 01/7/2013
Mam pytanie. Czy fragment ściany za kominkiem jest nośny? czy istnieje możliwość usunięcia tego fragmentu. Interesuje mnie taka zmiana w której komin przesuniemy na ścianę z szafką RTV i tv na drugą stronę drzwi na taras i tam też damy kominek (jeśli będzie potrzeba to zmniejszając drzwi) a ten fragment ściany gdzie teraz jest kominek usuniemy zostawiając normalny narożnik ścian zewnętrznych co pozwoli na większe otwarcie kuchni na salon np półwyspem.?
Administrator
Dodano : 01/7/2013
Taka zmiana jest możliwa, ale wymaga przeprojektowania stropu nad salonem ponieważ w pierwotnym rozwiązaniu ściana za kominkiem stanowi podparcie podciągu niosącego strop oraz korektę więźby dachowej ze względu na zmianę lokalizacji komina dymowego. Nie są to skomplikowane modyfikacje i można ją bez problemu wykonać na etapie adaptacji projektu do warunków miejscowych.
Piotr
Dodano : 27/4/2012
Chciałbym uzyskać informacje na temat systemu drzwi wewnętrznych. Bardzo podoba mi się zaproponowane rozwiązanie...
Łukasz
Dodano : 26/1/2012
Czy odkryty taras nad garażem sprawdza się w polskich warunkach pogodowych. Architekt zasugerował mi, że po pewnym czasie garaż nabierze wilgoci czego konsekwencją będzie grzyb.
Administrator
Dodano : 26/1/2012
Sprawdza się pod warunkiem zastosowanej odpowiedniej technologii. W naszych projektach stosujemy skandynawską technologię izolowania dachów płaskich membraną EPDM, balastowaną żwirem z odprowadzeniem wody systemowym wpustem. W tego typu rozwiązaniach nie ma typowych problemów eksploatacyjnych występujących w tradycyjnych projektach wykorzystujących jako wykończenie płytki ceramiczne. Niezawodność tego rodzaju technologii potwierdzają inwestorzy, zamieszkujący domy według naszych projektów już od kilku lat.
marta
Dodano : 06/1/2012
Ja również uważam, że okapy tylko 'pomniejszają' efekt wizualny tego projektu, który dzięki temu, że ich nie posiada wygląda bardzo nowocześnie i wyróżnia się na tle polskiej architektury ostatniego dziesięciolecia...dosyć przewidywalnej, a zarazem monotonnej (domki z kolumienkami- pseudo dworki), ale to jest tylko moja subiektywna opinia i dobrze, że coraz więcej ludzi i biur projektowych dostrzega potrzebę zmiany i powstają właśnie takie projekty:)
Kasia
Dodano : 06/1/2012
Ten projekt jest idealny,założeniem projektanta była prosta bryła i prosty dwuspadowy dach bez okapów,po co szpecić dach okapami,ludzie czy Wy nie macie gustu.
Paweł
Dodano : 05/1/2012
Jak widzę, nie tylko ja czekam na gotowy projekt z dachem okapowym. Troszeczkę szkoda, że nie macie Państwo go dostępnego, bowiem domy z rodziny Prosty są dla mnie (i nie tylko dla mnie)idealne. Adaptacja dachu z Wygodnego u lokalnego architekta to dość duży koszt i pewnie część klientów to odstrasza. Liczę na to, że może do wiosny sytuacja się zmieni.
Administrator
Dodano : 05/1/2012
Rozumiemy, że gusta i preferencje odbiorców mogą być różne, dlatego wszystkim miłośnikom tego projektu, którym forma dachu pozbawiona okapów wydaje się zbyt awangardowa przygotowujemy wersję z tradycyjnymi okapami. Osoby zainteresowane taką wersją prosimy o przesłanie powyższej informacji na skrzynkę mailową pracowni. W stosownym czasie poinformujemy zwrotnie o dostępności projektu. Wizualizacje poglądowe tego domu z dachem okapowym są dostępne na końcu galerii projektu Prosty 1
Łukasz
Dodano : 02/1/2012
Czy jest dostępna wersja tego projektu z dachem okapowym?
piotr
Dodano : 27/12/2011
zgadzam się z koleżankami...projekt i wizualizacje są fantastyczne, podobnie jak w przypadku Wygodnego i reszty projektów, jednak PROSTY2 to strzał w dziesiątkę;p
nataliaz
Dodano : 26/12/2011
Rewalecja! Długo szukałam odpowiedniego projektu a ten zawiera wszystkie rozwiązania jakich szukałam :) super polecam i czekam na zdjęcia z realizacji :)
Administrator
Dodano : 26/12/2011
Dziękujemy za pozytywne opinie. Również z niecierpliwością oczekujemy pierwszych zdjęć z realizacji.
paulina
Dodano : 26/12/2011
Ten projekt jest fantastyczny!!
Dodaj opinię