- Projekty domów
- Popularne
- Wielkość
- Kondygnacje
- Garaż
- Dach
- Działka
- Rodzaj zabudowy
- Inne kategorie projektów
- Projekty domów dla developera
- Projekty domów z pompą ciepła
- Projekty domów z rekuperacją
- Projekty domów z ogrzewaniem podłogowym
- Projekty domów z wyspą kuchenną
- Projekty domów z antresolą
- Projekty domów z wnętrzami
- Projekty domów z poddaszem do adaptacji
- Nietypowe projekty domów
- Projekty domów z płytą fundamentową
- Projekty premium
- Panoramy
- Realizacje
- Centrum informacji
- Dla dewelopera
- Kontakt





















Komentarze
Paula
Dodano : 17/1/2015
Witam. Do "Krzysztof" proszę kliknąć w imię "Paula", a pojawi się mój adres. ( prosty3glogow@wp.pl ).
Michał
Dodano : 12/1/2015
Witam, Mam 3 pytania odnośnie ewentualnych zmian w projekcie: 1. Czy możliwe jest zaprojektowanie schodów żelbetowych? 2. Czy możliwe jest wprowadzenie jednej bramy garażowej (rezygnacja ze słupa w środku)? 3. Czy możliwa jest rezygnacja z przeszkleń w wiatrołapie? Dziękuje i pozdrawiam
Administrator
Dodano : 12/1/2015
1. Tak, ale schody żelbetowe będą wizualnie dosyć masywne i stworzą ciemny kąt pod biegiem. 2. Tak, dwie oddzielne bramy wymusza ciężar płyt elewacyjnych. W przypadku zastosowania szerszej bramy pojedynczej należy zmienić materiał elewacyjny lub zastosować indywidualnie zamawiane elementy mechanizmów podnoszących. 3. Tak, chociaż przeszklenia redukują masywność frontowej formy domu.
krzysztof
Dodano : 24/12/2014
Witam moge prosic o kontakt meilowy Panstwa z Glogowa w sprawie budowy Prostego 3 lustrzany. Jestem w trakcie adapt. Proj. budowe chce zaczac na wiosne. Dziekuje
Paula
Dodano : 14/12/2014
Realizacja Prostego 3 odbicie lustrzane koło Głogowa, woj. dolnośląskie - mieszkamy już 2 miesiące :) Chętnie podzielimy się Naszymi doświadczeniami w realizacji inwestycji. Zapraszamy.
Mateusz
Dodano : 12/11/2014
Witam czy jest może na tym forum ktoś realizujący, któryś z wariantów w okolicy Poznania. Bardzo chętnie obejrzał bym dom wewnątrz.
Marcin
Dodano : 15/7/2014
Witam, jaka jest wysokość ścianki kolankowej i czy w projekcie z okapami jest ona taka sama?
Administrator
Dodano : 15/7/2014
Wysokość ścianki kolankowej w obu wersjach jest taka sama i wynosi 114 cm.
Łukasz
Dodano : 11/7/2014
Witam, jestem już przy końcu realizacji projektu Prosty3. Gdyby był ktoś zainteresowany kontaktem, wymianą doświadczeń i pomysłów - mój adres to lukasdurante@gmail.com
Krzysztof
Dodano : 08/5/2014
Witam, jaki jest orientacyjny koszt budowy tego domu systemem gospodarczym
Administrator
Dodano : 08/5/2014
Nie podajemy kwoty realizacji budowy w tzw. systemie gospodarczym ponieważ nie istnieje metodologia obliczeniowa umożliwiająca realne oszacowanie przyszłych wydatków. Nie można ogólnie przyjąć jakie prace zostaną wykonane przez samego inwestora, albo jakie rabaty uda mu się uzyskać na poszczególne materiały. Taki kosztorys można jedynie wykonać indywidualnie we współpracy z inwestorem, który określi jakie etapy będzie wykonywał samodzielnie i jakie materiały może uzyskać po niższych cenach. Dlatego uważamy , że podawane przez inne biura koszty budowy systemem gospodarczym to zwykła manipulacja, która ma na celu przekonać inwestora o niskich kosztach realizacji, a tym samym przekonać go do zakupu projektu.
Ola
Dodano : 15/4/2014
Witam, czy ktoś z Państwa ma zrealizowany dom z tego projektu i można byłoby przyjechać i go obejrzeć. To inwestycja na długie lata i fajnie jak można to sprawdzić przed budową na żywo. Jeśli jest taka możliwość proszę o informacje na priv ola.hillebrand@onet.eu
Sebastian
Dodano : 16/3/2014
Witam! jeszcze jedno pytanie w sprawie słupa :-) W "prostym 1" słupa brak i wizualnie wygląda to o niebo lepiej. Czy jest możliwość zrezygnowania z niego w prostym 3a, albo zaprojektowanie podwójnego garażu w prostym 1 (jak w prostym 3a)? Mam wąską działkę, a dom generalnie się podoba, stąd to pytanie.
Administrator
Dodano : 16/3/2014
Niestety w tej wersji słupa nie da się usunąć. Wariant "1" posiada podciąg przenoszący obciążenia stropu, biegnący od komina do ściany pomiędzy salonem a holem. To umożliwiło usuniecie słupa. W wersji "3" tego podciągu nie ma ponieważ w miejscu jego podparcia jest otwór wejściowy z holu. W "Prostym 1" można oczywiście powiększyć garaż do dwustanowiskowego.
Mateusz
Dodano : 05/3/2014
Witam Czy można zastosować w tym projekcie strop typu teriva? Zamierzam zrezygnować całkowicie z garażu.
Administrator
Dodano : 05/3/2014
Oczywiście, w każdym projekcie możliwa jest zmiana technologii wykonania stropu z żelbetowej na terive, ale wymaga to adaptacji dokumentacji.
darek
Dodano : 28/2/2014
@Szymon napisz do mnie na maila odpisze;dariusz.barys67@gmail.com
Tomasz
Dodano : 08/2/2014
Witam @ Szymon gdzie planujesz budowe domu w Malopolsce ? ja planuje w Krakowie Pozdrawiam
Dawid
Dodano : 29/1/2014
Planujemy kupno i budowę tego projektu. Czy buduje ktoś taki dom w okolicach Poznania? Chciałbym podpytać o kilka rzeczy. Proszę o kontakt.
szymon
Dodano : 11/1/2014
Darek prześlij kilka fotek z realizacji inwestycji
darek
Dodano : 16/12/2013
buduje prosty3 i jak pogoda dopisze to powinienem położyc strop.Jeżeli ktoś ma pytania na tym etapie to odpowiem.
Szymon
Dodano : 30/11/2013
Startuję z budową PROSTY 3A na wiosnę 2014 w małopolsce. Chętnie nawiążę kontakt z osobami które zaczęły już budowę lub mają w planach realizację tego projektu.
Ewi
Dodano : 16/11/2013
Witam,budujemy dom Prosty 3a jesteśmy na etapie fundamentów. Na wiosnę planujemy dokończyć budowę.Mam pytanie do Pauli czy jest możliwość porozmawiania i obejrzenia zdjęć lub domu osobiście? Mieszkam niedaleko Głogowa. Pozdrawiam.
Paula
Dodano : 10/10/2013
Witam, Czy ktoś już ma wybudowany Prosty 3?? Chętnie podzielę się informacjami i wymienię zdjęciami. My kończymy więźbę dachową i do zimy będzie stan surowy zamknięty. Pozdrawiam
DOMY Z WIZJA
Dodano : 09/9/2013
Model i kolor dachówki są dokładnie opisane w dokumentacji projektowej. Kosztorys uwzględnia zaproponowany przez nas model, ale przyjmuje uśrednioną kwotę za 1 m2 ponieważ koszt tej samej dachówki w różnych częściach kraju może być różny.
Rafa
Dodano : 08/9/2013
Jaki dokladnie kolor dachowki przedstawia Państwa wizualizacja. Kazda firma ma swoje kolory. Czy w projekcie, kosztorysie poslugujecie się cennikiem konkretnej firmy czy średniej ceny prostej dachowki ceramicznej z połyskiem?
Gosia
Dodano : 04/9/2013
Proszę o informacje czy możliwe jest otwarcie salonu do wysokości dachu z jednoczesnym przeszkleniem ściany szczytowej od strony ogrodu - nad salonem i w pozostałej sypialni (odpowiada mi układ i bryła Prostego, ale chciałabym zaczerpnąć rozwiązanie z Domu z Charakterem dotyczącym przestrzeni nad salonem). Jednocześnie z sypialni nad kuchnią/ jadalnią chciałabym zrobić sypialnię główną. Czy możecie państwo dokonać takich zmian w projekcie? Jaki byłby koszt tych zmian i z jakimi zmianami układu domu musiałabym się liczyć. Pozdrawiam wszystkich fanów tych projektów
Administrator
Dodano : 04/9/2013
Zmiana tego typu jest możliwa, ale odradzamy jej wprowadzenie. Bez okapowa forma domu narzuca zamknięcie poddasza w monolitycznej bryle, natomiast proponowane przez Panią modyfikację spowodują jej otwarcie i rozbicie. Trzeba dużego wyczucia projektowego żeby efekt końcowy był dobry.
Laura
Dodano : 15/8/2013
Witam. Proszę o odpowiedź na czym polega energooszczędność tego projektu? Jakie koszty ogrzewania w miesiącach zimowych? Mój znajomy oglądał kalkulator energetyczny - wybudował dom niedawno, ma takie same rozwiązania (nie ma systemu rekuperacji) a rachunki za gaz to ponad 10tys rocznie.
Administrator
Dodano : 15/8/2013
Nie jest to dom stricte energooszczędny, wprawdzie założone w dokumentacji izolacje termiczne na przegrodach są większe od obowiązujących norm ale w domach typowo energooszczędnych są znacznie grubsze. Trudno nam się odnieść do kosztów jakie ponosi Pani znajomy ponieważ na ich wysoki poziom może mieć wpływ wiele czynników, ale możemy zapewnić, że wartości kosztów eksploatacji podawane w naszych kalkulatorach są realne ponieważ weryfikują je użytkownicy wybudowanych domów.
Kasia
Dodano : 14/8/2013
Czy można wykonać podpiwniczenie dla tego projektu ? i czy można powiększyć salon w stronę tarasu, tak aby kominek znalazł się w środku pomieszczenia ?
Administrator
Dodano : 14/8/2013
Podpiwniczyć można każdy budynek pod warunkiem, że pozwalają na to warunki gruntowe. Dlatego decyzję o doprojektowaniu piwnicy należy podejmować po wykonaniu badań określających nośność podłoża i poziom wody gruntowej. W przypadku projektów typowych doprojektowanie piwnicy jest najczęściej wykonywane przez lokalnych architektów w ramach adaptacji projektu do warunków miejscowych. Podcień tarasowy można włączyć do wnętrza domu pozostawiając kominek w obecnym miejscu przy czym należy pamiętać że uskok tarasu w bryle łagodzi jej masywność.
Michal
Dodano : 20/6/2013
Mam pytanie o drzwi wejściowe. Czy jest to konstrukcja na indywidualne zamówienie czy może jakaś firma ma taki wynalazek w swojej ofercie?
LUDZIK
Dodano : 07/4/2013
Projekt bardzo nam się podoba. Wnętrze chcielibyśmy też takie jak zaproponowane. Stąd pyt. o schody i kominek. Czy to czysta wizualizacja czy też wykorzystanie gotowych produktów. Jaka jest w zw. z tym ich orientacyjna cena i kto to produkuje. Liczymy koszty, będziemy b. wdzięczni za odp.
Administrator
Dodano : 07/4/2013
Kominek to gotowy produkt firmy Spartherm natomiast schody są rozwiązanie indywidualnym wykonywanym na zamówienie.
Kasia
Dodano : 27/3/2013
Dzień dobry, czy są może już jakieś zdjęcia z realizacji tego domu? Pozdrawiam
Administrator
Dodano : 27/3/2013
Pierwsze zdjęcia z realizacji rodziny Prostych postaramy się zaprezentować po wakacjach. Mamy sygnały od inwestorów, na temat przebiegu ich budowy, ale nie chcemy pokazywać zdjęć z wczesnych etapów prac, wolimy przedstawiać budynki wykończone, które w pełni ukazują wszystkie walory.
Ewa
Dodano : 03/2/2013
Jesetem zainteresowana kupnem projektu,ale chciaŁabym czesc garazu przerobic na kotownie na paliwo staŁe,co wiaze sie ze zmiana miejsca dla komina..czy taka zmiana jest mozliwa??
Administrator
Dodano : 03/2/2013
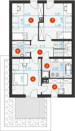
Zmiana lokalizacji komina jest możliwa, ale poza korektami natury konstrukcyjnej wymaga również modyfikacji układu funkcjonalnego poddasza. Komin należy przesunąć w lewo co wymusi zamianę pomieszczeń w strefie masterbedroom. Sypialnia przeniesie się na prawą stronę, a łazienka i garderoba na lewą. Po takiej zamianie należy zmniejszyć otwór okienny w garderobie oraz wprowadzić dodatkowe okno połaciowe w sypialni. Dostęp na taras nad garażerm będzie wyłącznie z garderoby.
Aneta
Dodano : 16/12/2012
Czy można powiększyć garaż do 40 m.kw?Mam też pytanie o kotłownię? Czy można to pomieszczenie podzielić aby stworzyć przy wejściu miejsce na szafę itp. W obecnej wersji płaszcze gości wędrowałyby do kotłowni-bo tam jet szafa-trochę mi to nie psuje.Będę wdzięczna za propozycję rozwiązania kwestii garderoby przy wejściu. A tak poza ty -JESTEŚCIE SUPER!
Administrator
Dodano : 16/12/2012
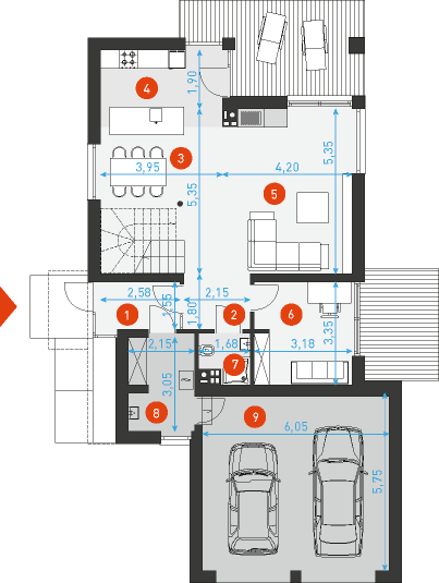
W tym projekcie poszerzenie garażu nie stanowi problemu, można go poszerzyć lub wydłużyć bez straty na proporcjach budynku. Kwestia zmian w kotłowni jest znacznie trudniejsza - raczej nie da się podzielić tego pomieszczenia ze względu na lokalizację komina i konieczność usytuowania kotła w jego pobliżu, chyba że zrezygnujemy z komunikacji z garażu do domu co nie jest dobrym rozwiązaniem. W tym projekcie założyliśmy kotłownię gazową. W takim przypadku łączenie pomieszczeń kotłowni i garderoby jest jak najbardziej dopuszczalne ponieważ współczesne kotły gazowe zintegrowane z zasobnikiem wodnym są bardzo estetyczne i czyste, można je nawet umieszczać w pomieszczeniach typu łazienka. Można rozważyć również odwrócenie biegu schodów i wprowadzenie pod górnym biegiem szafy wnękowej dostępnej z wiatrołapu, ale to jest rozwiązanie które wpłynie na wygląd przestrzeni dziennej domu czyli salonu i jadalni.
Adam
Dodano : 11/11/2012
Witam Państwa. Projekt bardzo mi się podoba. Ale mam pytanie do biura. W projekcie są zastosowane dość nietypowe rynny i łączenie rynny z rurą. Jakaś puszka?? Czy to rozwiązanie można gdzieś kupić, czy będzie na zamówienie? Czy w projekcie są jakieś rozwiązania niestandardowe, na zamówienie? Boję się jakichś większych kosztów podczas realizacji. Pozdrawiam. Adam.
Administrator
Dodano : 11/11/2012
Same rynny są jak najbardziej typowe. Puszka na początku rynny to tzw. kosz rynnowy, który część producentów ma w ofercie standardowej, natomiast połączenie rynny z koszem jest niestandardowe i kolanko łączące trzeba wykonać na zamówienie, co dla wprawnego rzemieślnika nie stanowi większego problemu. Ogólnie przyjęliśmy zasadę upraszczania pewnych detali projektowych do możliwości wykonawczych przeciętnych ekip budowlanych. Detale projektowe są precyzyjnie rozrysowane dlatego trzeba tylko pilnować założeń dokumentacji. Przyjęte rozwiązania będą standardowe lub nie w zależności od wyboru producenta danego materiału i wykonawcy np. w przypadku stolarki producent którego rekomendujemy wykonuje podane wymiary standardowo dla innego producenta będą to już wymiary nietypowe. W przypadku stropów żelbetowych wylewanych dla jednego wykonawcy będzie to element prosty do wykonania, a dla mniej wykfalifikowanej ekipy będzie to rozwiązanie skomplikowane i niestandardowe stąd jest to kwestia dosyć relatywna. Ogólnie rozwiązania które rekomendujemy są u proponowanych przez nas producentów oraz dla doświadczonych ekip standardowe.
Małgorzata
Dodano : 04/11/2012
ja jestem zakochana w tym projekcie- zastanawiam sie tylko nad dośc dziwnym rozwiąZaniem- CZY DA SIE PRZENIEŚĆ KOMIN W MIEJSCE SŁUPA...OCZYWISCIE PRZESUNĄĆ SCHODY A WEJŚCIE DO DOMU ZROBIC KOŁO GARAŻU....? DA SIE?mam nadzieje bo codziennie o tym myśle:)
Anna
Dodano : 03/11/2012
Kiedy na stronie będzie można zobaczyć zapowiedzianą w maju panoramę 3d części dziennej?
warren
Dodano : 23/10/2012
Super! W takim razie pozostaje mi tylko życzyć udanej budowy i mega efektu końcowego...:) również pozdrwaiam
Paula
Dodano : 22/10/2012
Witam ponownie :) Oczywiście zdjęcia z realizacji prześlemy. Na chwilę obecną kończymy stan zero i w tym roku, to będzie wszystko. Na wiosnę ruszamy pełną parą z resztą. Sami jesteśmy ciekawi jak, to wyjdzie w rzeczywistości. Etap fundamentów już pokazuje, że dom wcale nie jest taki "malutki" ... ;) Pozdrawiam
warren
Dodano : 16/10/2012
Pani Paulo mam nadzieję, że będzie gdzieś można zobaczyć zdjęcia z realizacji Waszego domu. Przyznam, że jest to chyba jeden z moich ulubionych projektów- podobnie jak pozostałe PROSTE, czy te z rodziny WYGODNYCH...:)i w przyszłości chciałbym również zamieszkać w jednym z nich, a jak na razie, to chyba właśnie Prosty 3 jest moim zdaniem najbardziej optymalny pod każdym względem i jestem ciekaw jak będzie się prezentował w "realu". pozdrawiam serdecznie
Paula
Dodano : 14/10/2012
My już zaczynamy budować :)) Budowa koło Głogowa. Projekt idealny - POLECAM!!!
Maciej
Dodano : 22/8/2012
Czy ktoś z Państwa realizuje inwestycje na podstawie tego projektu? Będę bardzo wdzięczny za kontakt na e-mail: nitrox4@tlen.pl Pozdrawiam
Michał
Dodano : 01/8/2012
Witam,jestem zainteresowany kupnem tego projektu i pewnie nastąpi to w najbliższym czasie. Jezeli mogę wyrazic opinie to oddzieleni kuchni nie będzie najlepszym pomysłem. Przy tak "kompaktowych" rozmiarach domu zrobimy krzywdę zarówno salonowi jaki i kuchni. A może zamiast słupa, który jest elementem konstrukcyjnym, okrągłego, zrobić prostokatny, nie będzie się kłócił z architekturę wnetrza, brakiem w nim krzywizn, może być szerszy niż słupek okrągły? Pozwoli to na "optyczne" wydzielenie tych pomieszczeń. Słupek w kształcie "L-ki" ze ścianami równoległymi do komunikacji pomiedzy salon-kuchnia a schodami?
Administrator
Dodano : 01/8/2012
Słup okrągły jest zawsze najmniej "inwazyjny" w przestrzeni, im większy będzie słup w tym miejscu tym trudniej będzie korzystać ze stołu w jadalni. Zwracamy uwagę , że wielkość miejsca przeznaczonego na jadalnię jest optymalna, a otwarta przestrzeń pod schodami jest dodatkowym ułatwieniem w korzystaniu ze stołu, jej zamknięcie zmniejszy wygodę jadalni.
Anna
Dodano : 29/7/2012
Czy istnieje możliwość zamknięcia kuchni, ale żeby znajdowała się w tym samym miejscu? Oraz czy po wybudowaniu takiej ściany można usunąć słup, który raczej nie jest ozdobą salonu?
Administrator
Dodano : 29/7/2012
Koncepcja projektu zakładała maksymalną otwartość wnętrza, a co za tym idzie funkcjonalna lokalizacja kuchni w w takim układzie raczej wyklucza możliwość jej zamknięcia. Technicznie jest to do zrobienia, ale wątpię czy byłaby Pani zadowolona z ostatecznego efektu takiej modyfikacji. Słup w obecnej formie jest niestety konieczny ze względów konstrukcyjnych.
Przemek
Dodano : 15/5/2012
Ten projekt to spełnienie moich marzeń, rewelacja..., czy jest szansa na więcej zdjęć,zwłaszcza piętra i animacje?
Administrator
Dodano : 15/5/2012
We wszystkich domach staramy się pokazywać głównie charakterystyczne elementy wnętrza, które wyróżniają go spośród innych propozycji. Te różnice zazwyczaj są najbardziej widoczne na parterze i to na nich skupiamy energię przy tworzeniu aranżacji. Animacji nie planujemy, ale wkrótce ukaże się panorama 3d części dziennej. Potem już tylko należy czekać na pierwsze zdjęcia z realizacji, które najpełniej oddają wszystkie walory naszych wyjątkowych projektów.
Aneta
Dodano : 29/11/2011
Ten projekt to spełnienie naszych marzeń. Czekamy na ukończenie projektu,który miał być w sprzedaży od 26.11. Pozdrawiam
Administrator
Dodano : 29/11/2011
Projekt jest już dostępny w sprzedaży, zapraszamy do zakupu.
Joanna
Dodano : 21/11/2011
ja również jestem zdecydowana na ten projekt ale czekam na kosztorys, który miał się pokazać jakiś czas temu :)
Administrator
Dodano : 21/11/2011
Firma kosztorysująca już nad nim pracuje, prosimy o cierpliwość i wyrozumiałość. Już wkrótce zaprezentujemy również ukończone wizualizacje budynku.
Maciek
Dodano : 14/11/2011
Jest to projekt na który jestem zdecydowany w 99% czekam tylko na jego finalną wersję.Czy w tym projekcie można wykonać dach jak w projektach Wygodny czyli nie jest on dopasowany do budynku tylko standardowy dwuspadowy z okapem?. Kiedy można spodziewać się finalnego projektu ,pozdrawiam
Administrator
Dodano : 14/11/2011
Dokumentacja pojawi się w sprzedaży do dnia 25.11. Dach można oczywiście przeprojektować na tradycyjny z okapami, jednak dla uzyskania korzystniejszych proporcji bryły całego budynku należy zmniejszyć kąt nachylenia połaci z 42 stopni na 40.
Dodaj opinię