- Projekty domów
- Popularne
- Wielkość
- Kondygnacje
- Garaż
- Dach
- Działka
- Rodzaj zabudowy
- Inne kategorie projektów
- Projekty domów dla developera
- Projekty domów z pompą ciepła
- Projekty domów z rekuperacją
- Projekty domów z ogrzewaniem podłogowym
- Projekty domów z wyspą kuchenną
- Projekty domów z antresolą
- Projekty domów z wnętrzami
- Projekty domów z poddaszem do adaptacji
- Nietypowe projekty domów
- Projekty domów z płytą fundamentową
- Projekty premium
- Panoramy
- Realizacje
- Centrum informacji
- Dla dewelopera
- Kontakt




















Komentarze
Beata
Dodano : 04/5/2017
Dzień dobry, Czy istnieje możliwość zmiany projektu tak, aby cześć dzienna (salon, kuchnia, jadalnia i klatka schodowa) pozostały niezmienne, natomiast garaż (podwójny), gabinet, kotłownię i toaletę zaadoptować z projektu Prosty 1A? Takie rozwiązanie byłoby dla nas idealne.
Administrator
Dodano : 04/5/2017
Można taką zmianę wprowadzić na etapie adaptacji, ale raczej łatwiej będzie dostosować wersję 1A,niż przerabiać ten projekt.
Kasia
Dodano : 28/4/2017
Czy istnieje możliwość usunięcia filaru obok schodów? Co należało by zrobić żeby się go pozbyć?
Administrator
Dodano : 28/4/2017
Taka zmiana jest problematyczna konstrukcyjnie ponieważ strop musi mieć oparcie jeśli nie w postaci słupa to podciągu - belki żelbetowej biegnącej pod sufitem. Na tym układzie funkcjonalnym nie ma możliwości sensownego umieszczenia takiego elementu.
Magda
Dodano : 18/12/2016
Jesteśmy zainteresowani tym projektem. Jednak przed decyzją chcielibyśmy zobaczyć realizację w realu. Najlepiej w okolicach Śląska/ Małopolski. Będziemy wdzięczni za kontakt z osobami, które realizowały. Dziękuję
Katarzyna
Dodano : 24/2/2016
Zastanawiamy się poważnie nad zakupem i budową wg. Prosty 3A. Boimy się jednak, że w rzeczywistości dom okaże się zdecydowanie za duży.... Mogę prosić o opinie kogoś, kto już zrealizował ten projekt?
Maciek
Dodano : 09/11/2015
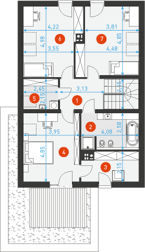
Czy jest możliwość zmiany kąta nachylenia połaci dachowych z 40 na 35 stopni? Jak wpłynie to wygląd ogólny budynku?
Administrator
Dodano : 09/11/2015
Taka zmiana jest możliwa, ale żeby zachować jednakową funkcjonalność pomieszczeń na poddaszu należałoby skompensować niższy kąt połaci wyższą ścianką kolankową. Wyższa ścianka kolankowa w przypadku wersji bezokapowej na pewno wpłynęłaby niekorzystnie na wygląd domu, ale tutaj mamy wysunięte okapy, które wizualnie obniżają pas nadokienny parteru więc będzie to wyglądało nieco lepiej niż w wersji Prosty 3.
Szymon
Dodano : 30/11/2013
Startuję z budową PROSTY 3A na wiosnę 2014 w Małopolsce. Chętnie nawiążę kontakt z osobami które zaczęły już budowę lub mają w planach realizację tego projektu
Monika
Dodano : 13/10/2013
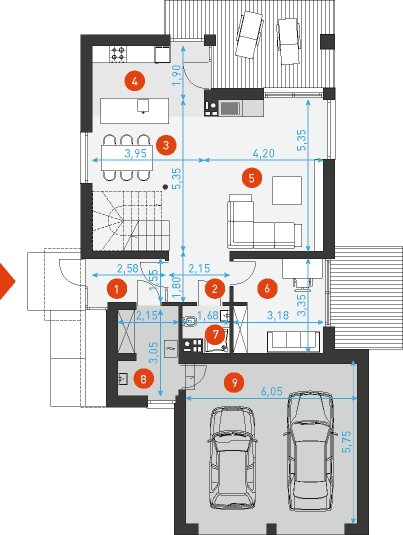
Witam, 1. czy mają Państwo wizualizację projektu z oknem przy "jadalni", które nie byłoby do samej ziemi? 2. czy mają Państwo jakieś "rozwiązanie", aby zwiększyć ilość szafek w kuchni i zmieścić większą lodówkę (side-by-side)? Kuchnia na projekcie wygląda bardzo ładnie, idealnie pasuje do wnętrza, ale niestety dla większej - "gotującej" rodziny, jest stanowczo za mała.
Administrator
Dodano : 13/10/2013
Aby zwiększyć powierzchnię ciągów roboczych w kuchni a tym samym ilość szafek można zastosować rozwiązanie z Prostego 1 czyli likwidację okna na ścianie szczytowej i bocznego naświetla w drzwiach wyjściowych na taras. Można również zawinąć na bocznej ścianie ciąg roboczy na wyspę. Po takich modyfikacjach w celu lepszego doświetlenia kuchni można wykonać na ścianie szczytowej poziome okno nadblatowe, takie jak w projekcie Atrakcyjny 3.
Andrzej
Dodano : 04/4/2013
Witam, Czy istnieje możliwość zamiany pomieszczeń? Tzn. w miejsce salonu kuchnie tak aby ulokować spiżarnie?
Administrator
Dodano : 04/4/2013
Można, należy tylko przesunąć ścianę z kominem o 30 cm w osiach konstrukcyjnych w stronę obecnego salonu oraz zmniejszyć głębokość podcienia tarasowego o 30-60 cm w osiach konstrukcyjnych. Taka modyfikacja stworzy układ wnętrza podobny do domu Prosty 2 z tą różnicą , że w miejscu jadalni będą schody, a stół przy wyjściu na taras. Oczywiście stworzona w ten spsoób spiżarnia będzie miała niewielką szerokość ok. 1-1,2 m, chyba, że zdecyduję się Pan na dodatkowe wydłużenie z linią kalenicy całej tylnej części domu.
Agnieszka
Dodano : 19/3/2013
poproszę o podanie właściwej powierzchni dachów dla wszystkich wariantów prostego w wersji z okapami
Administrator
Dodano : 19/3/2013
Prawidłowe powierzchnie zostały wprowadzone, dziękujemy za czujność:)
Dodaj opinię