- Projekty domów
- Popularne
- Wielkość
- Kondygnacje
- Garaż
- Dach
- Działka
- Rodzaj zabudowy
- Inne kategorie projektów
- Projekty domów dla developera
- Projekty domów z pompą ciepła
- Projekty domów z rekuperacją
- Projekty domów z ogrzewaniem podłogowym
- Projekty domów z wyspą kuchenną
- Projekty domów z antresolą
- Projekty domów z wnętrzami
- Projekty domów z poddaszem do adaptacji
- Nietypowe projekty domów
- Projekty domów z płytą fundamentową
- Projekty premium
- Panoramy
- Realizacje
- Centrum informacji
- Dla dewelopera
- Kontakt




















Komentarze
Tomek
Dodano : 04/5/2017
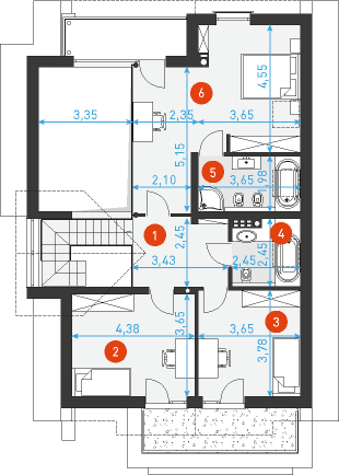
Hybrydowe ogrzewanie podłogowe - pytanie czy pomieszczenia w których (wg projektu) zastosowano niskotemperaturowe ogrzewanie konwekcyjne - nie będą narażone na zbyt niską temperaturę? Przy standardowym ogrzewaniu konwekcyjnym kaloryfery nagrzewają się do 2x wyższej temperatury niż ta którą się używa przy ogrzewaniu podłogowym. Gdy użyjemy kaloryferów w pomieszczeniach w których nie rozprowadzona jest instalacja ogrzewania podłogowego i nagrzejemy je do temperatury która panuje w instalacji podłogowej (28 C) to będą one zbyt chłodne by nagrzać pomieszczenia...
Administrator
Dodano : 04/5/2017
Nawet przy zastosowaniu ogrzewania podłogowego instalacja grzewcza jest wysokotemperaturowa tylko do obiegu podłogówki stosuje się mieszalniki z zimną wodą, które schładzają wodę do zadanej w sterowniku temperatury. To standardowe rozwiązanie dzięki któremu podłogówka może współpracować z kotłem na paliwo stałe lub kominkiem z płaszczem wodnym.
Tomek
Dodano : 04/5/2017
Pytanie odnośnie okien zewnętrznych. Czy są to okna standardowych rozmiarów dostępne u któregoś producenta wprost z katalogu czy wymagane jest zamawianie okien "na miarę"? Podoba mi się przeszklenie budynku ale mam obawy co do dostępności okien w rozmiarach takich jak w projekcie gdyż wyglądają one bardzo niesdandardowo.
Administrator
Dodano : 04/5/2017
Poza marketem budowlanym żaden producent nie oferuje okien standardowych z katalogu. Każda stolarka jest przygotowywana na indywidualne zamówienie na podstawie inwentaryzacji powykonawczej m.im. dlatego, że standard budowlany w naszym kraju jest na niskim poziomie i wymiary budynku, w tym otwory, rzadko pokrywają się dokumentacją projektową. Reasumując żaden producent nie zaryzykuje wykonania okien tylko na podstawie projektu bez postawionego budynku. Jeśli chodzi o wymiary to obecnie nie stanowią one żadnego problemu.
Marzena
Dodano : 08/1/2017
Witam, jesteśmy w trakcie szukania osoby która wykona przeszklenie w sypialni oraz "ściankę" w przedpokoju. Czy jest tu ktoś mający kontakt do takiej osoby? Szklarz w naszej okolicy podał kosmiczną wycenę....
Łukasz
Dodano : 04/12/2016
Witam, czy jest możliwość, a jeśli tak to w jakiej cenie, piwnice na 1/2 domu. Jaki byłby przypuszczalny koszt. Chciałem tam zrobić miejsce pod siłownie + gabinet
Administrator
Dodano : 04/12/2016
Panie Łukaszu przede wszystkim możliwość doprojektowania piwnicy jest zależna od warunków gruntowych na działce inwestycyjnej. Jeśli teren jest przepuszczalny i nie występuję wysokie lustro wody gruntowej to nie ma przeciwwskazań do wykonania piwnicy. Oczywiście taką modyfikację musi wykonać lokalny architekt w ramach adaptacji do warunków miejscowych, nasza pracownia nie wykonuje takich zmian. W kwestii kosztów nie chcemy się wypowiadać bo będą zależne od bardzo wielu czynników. Najlepiej jest wycenić zmianę w lokalnej firmie budowlanej.
Kamil
Dodano : 13/8/2016
Witam my również jesteśmy zainteresowani budową domu według projektu "z chrakterem 3" Czy istnieje możliwość wskazania budowy takiego domu z tym projektem w woj. podlaskim by móc zobaczyć ten dom na żywo ?
Marcin
Dodano : 04/8/2016
Jestem wstępnie zainteresowany tym projektem, mam dwa pytania: 1. Czy istnieje możliwość likwidacji stopnia na parterze? (tak by by cały parter był na jednym poziomie)? 2. Czy zamiast szklanej ściany na antresoli, byłaby możliwość postawienia normalnej ścianki?
Administrator
Dodano : 04/8/2016
1. Tak , to nie stanowi żadnego problemu. 2. Taką zmianę również można wykonać, ale nie jesteśmy do niej przekonani z powodów estetycznych. Część inwestorów pozostawia antresolę jako komunikację z balustradą, a sypialnię zamyka ścianą konstrukcyjną, Takie rozwiązanie bardziej nam się podoba, choć oczywiście zmniejsza nam ono powierzchnię użytkową sypialni.
Mateusz
Dodano : 15/3/2016
Witam, czy istnieje możliwość zwężenia tego domu o 60 cm? Jeśli tak, czy zmieni się wówczas kąt nachylenia dachu, czy może pozostać bez zmian?
Administrator
Dodano : 15/3/2016
Technicznie to jest możliwe. Aby zmiana była najmniej inwazyjna kalenica budynku powinna zostać na tym samym poziomie i tylko ściany zewnętrzne po obu stronach powinny zostać przesunięte do środka po 30 cm. Po takiej modyfikacji kąt dachu pozostanie ten sam tylko zmieni się poziom murłat i w pokojach na poddaszu podwyższy się ścianka kolankowa.
Ewa
Dodano : 15/11/2015
Witam. Chciałam zapytać czy jest możliwość zrobienia pokoju na dole w którym zmieściłoby się biurko i sofa, nawet jeśli byłoby to kosztem stanowiska w garażu.
Administrator
Dodano : 15/11/2015
Technicznie można wykonać taką zmianę ale będzie mało funkcjonalna. Ten projekt jest mniejszy od domu Doskonały i ma inny rozkład pomieszczeń. W domu Z Charakterem schody w centrum strefy dziennej utrudniałyby swobodną komunikację pomiędzy salonem, a kuchnią i jadalnią. Ponadto taka lokalizacja schodów zmniejszyłaby sypialnię rodziców o przestrzeń na antresoli.
Norbi
Dodano : 11/10/2015
Czy istnieje możliwość instalacji kotła na paliwo stałe?
Administrator
Dodano : 11/10/2015
Tak, kotłownia w stosunku do powierzchni domu jest duża i można w niej ulokować piec na paliwo stałe, natomiast piece mają odmienne wymiary i wymagania techniczne, dlatego trzeba to sprawdzić pod kątem konkretnego modelu i producenta.
Margo
Dodano : 17/2/2015
Witam, jesteśmy w trakcie realizacji tego projektu. Wprowadziliśmy kilka zmian - podniesienie o jeden pustak góry, zrezygnowaliśmy z antresoli na rzecz garderoby i dodatkowego pokoju, oraz zmodyfikowaliśmy trochę łazienki (zrobiliśmy wejście z przedpokoju, druga - zmiana na pralnię). Wygląda rewelacyjnie i jest bardzo funkcjonalnie:)
Magda
Dodano : 11/1/2015
Witam, chciałam zapytać czy przy zakupie projektu np. z modyfikacją antresoli na garderobę to czy Państwo wtedy przedstawiają również wizualizację tych zmian? I czy jest możliwość zrezygnowania z tego małego balkonu z tyłu domu na rzecz własnie większej garderoby a wstawienie tam tylko pojedynczego okna balkonowego, takiego jak jest obok?
Administrator
Dodano : 11/1/2015
Nie ma konieczności likwidowania pustki nad salonem w celu wykonania garderoby, oczywiście pod warunkiem, że garderoba może mieć niewielkie wymiary. Jeżeli jest Pani zainteresowana możemy przesłać rysunki poglądowe na maila.
Beata
Dodano : 08/11/2014
Czy buduja Panstwo rowniez za granica (Niemcy)
Administrator
Dodano : 08/11/2014
My jedynie sprzedajemy projekty, realizacja na terenie Niemiec będzie wymagała adaptacji projektu przez miejscowego architekta.
TOMASZ
Dodano : 13/4/2014
Witam jesteśmy zainteresowani domem z chrakterem 3.. czy jest możliwość wskazania budowy takiego domu w podlasiu by móc obejżeć na żywo..?
Monika
Dodano : 31/3/2014
Witam! Mamy zamiar budować 'z charakterem 3' , jednak warunki zabudowy jakie mamy dla naszej działki mówią o dachu symetrycznym i spadku w granicach 37-45 stopni, działka leży w otulinie Parku Tenczyńskiego. Czy musimy się martwić, że nie zrealizujemy swojego marzenia o tym właśnie domku? Czy są możliwe zmiany w projekcie tak aby budowa doszła do skutku? Czekamy na odpowiedź.
Administrator
Dodano : 31/3/2014
Przede wszystkim proszę przesłać na nasz adres mailowy warunki zabudowy oraz skan mapy działki, przeanalizujemy możliwość lokalizacji tego projektu. W tej chwili nie ma powodu do obaw ponieważ w przypadku zaistnienia niekorzystnych zapisów dyskwalifikujących ten projekt zawsze można wystąpić o wydanie ponownej decyzji o warunkach zabudowy.
MARCIN
Dodano : 04/7/2013
Czy można zlikwidować antresole na korzyść dodatkowego pomieszczenia? [garderoby/pokoju] Jakiej powierzchni pomieszczenia można się spodziewac po zlikwidowaniu antresoli? A może jest inne rozwiązanie aby zlikwidować te oszklenia? Ładnie to wygląda, ale jestem zwolennikiem funkcjonalnych rozwiązań [również do mycia] Pozdrawiam
Administrator
Dodano : 04/7/2013
Można, ale uzyskana w ten sposób przestrzeń pozwoli jedynie na wygospodarowanie pomieszczenia pomocniczego np. garderoby przy sypialni rodziców. Jest to spowodowane tym, że skos połaci nad salonem schodzi do poziomu stropu, a zatem po likwidacji pustki na poddaszu trzeba wykonać odsuniętą ściankę kolankową. Jeżeli zależy Panu jedynie na likwidacji przeszklenia to można również zamknąć sypialnię ścianą, a na antresoli, pełniącej wtedy role wyłącznie komunikacyjną, wykonać tradycyjna balustradę.
Anka
Dodano : 14/3/2013
Witam ponownie, chciałam ponownie zapytać o te rury. Pytam , ponieważ pewien pan na forum napisał ze jego projektant pozbył sie tych rur . Dlatego pytam jak ..i czy mozna? Proszę o odpowiedz , jestem na 99% pewna kupna tego projektu. A ta rura przy wyjściu na taras trochę mi nie pasuje.
Administrator
Dodano : 14/3/2013
Można zlikwidować słup stalowy podtrzymujący antresolę przy wyjściu na ogród zwiększając pionowy przekrój nadproża okiennego, a co za tym idzie zmniejszając wysokość stolarki usuwając górne naświetle. Takie rozwiązanie zostało wprowadzone w domu z Charakterem 1. Drugi słup teoretycznie można również usunąć , ale tego nie polecamy bo w tym przypadku zmiana mocno ingeruję w konstrukcję budynku.
Anka
Dodano : 26/2/2013
Czy jest możliwość zlikwidowanie rur podtrzymujących strop, jeśli tak, to jakie inne konieczne rozwiązania konstrukcyjne należy wykonać? Mocno zainteresowana.
ania
Dodano : 30/1/2013
Projekt super , jestem nim zachwycona, ale niestety moja dzialka ma tylko 18m i nie spelnia wymaganej szerokosci.Czy jest mozliwosc dosuniecia sie o 1m do granicy sasiada tak jak w przypadku projektu Prosty 3?
Administrator
Dodano : 30/1/2013
Usytuowanie tego domu na Pani działce z godnie z wymaganiami technicznymi będzie wymagało likwidacji okien na lewej elewacji lub ich zamianę na pustaki szklane. Można również dokonać zwężenia budynku przesuwając jego lewą ścianę do środka o 30 cm liczone w osiach konstrukcyjnych ścian. Nie jest to zmiana skomplikowana, ale wymagająca znacznych korekt w dokumentacji na etapie adaptacji projektu do warunków miejscowych.
Piotr
Dodano : 09/1/2013
Czy posiadacie Państwo kosztorysy wykonanych już realizacji? Chciałbym wiedzieć czy nastąpiło - a jeżeli tak, to jak duże - odstępstwo pomiędzy wstępną kalkulacją budowy przedstawioną przez Państwa w kosztorysie a realnym kosztem wybudowania domu. Z góry dziękuję za odpowiedź.
Administrator
Dodano : 09/1/2013
Prosimy o kontakt z Pracownią, spróbujemy skontaktować Pana z jednym z inwestorów, który ukończył budowę.
Marta
Dodano : 30/12/2012
Czy istnieje możliwość likwidacji balkonu z przodu,na konto powiekszenia pokoi o ich powierzchnię ?
Administrator
Dodano : 30/12/2012
Technicznie jest to możliwe, ale odradzamy. Dom po takiej modyfikacji straci odpowiednie proporcje i wygląd.
Marzena
Dodano : 14/5/2012
Piękna kuchnia, oczu nie można oderwać. Z ciekawości chciałbym zapytać o rozmiar szafek czy są to 50 czy 60 i czy wszystkie takie same ?
Dodaj opinię